3
2
135m2
110m2
Yes
600 Mts.
New-Build Townhouses on the Frontline of La Serena Golf in Los Alcázares
Premium Location by the Golf Course and the Sea
Discover an exclusive residential development of 31 new-build townhouses located on the frontline of La Serena Golf in Los Alcázares, just 600 m from the Mar Menor. Situated in the heart of the Costa Cálida, this privileged setting combines golf, beach, and Mediterranean lifestyle. With all amenities nearby and excellent road access, it is the ideal location for both holidays and year-round living.
Modern Homes with Private Pool and Rooftop Solarium
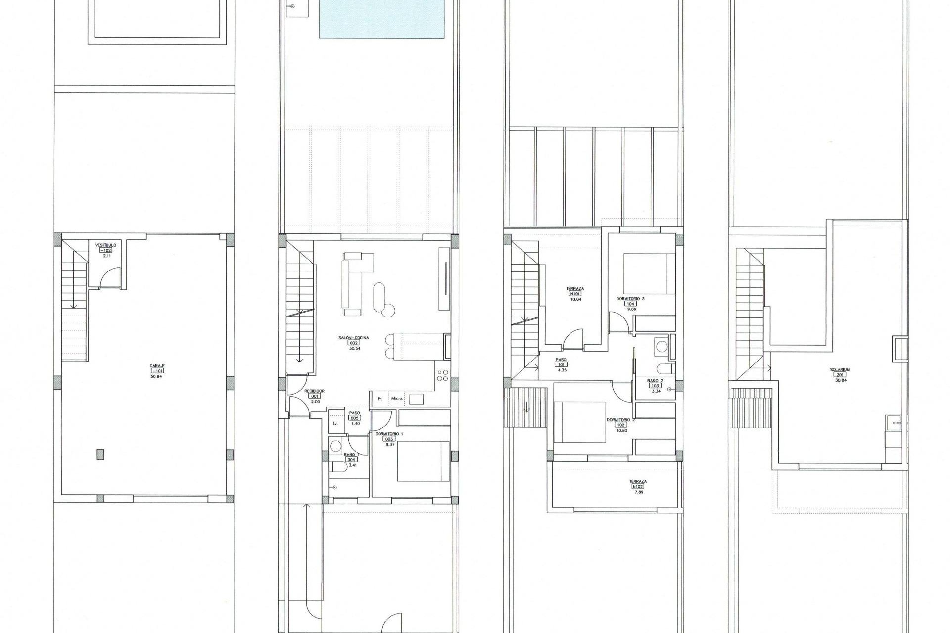
Each house features a stylish contemporary design and bright interior spaces. The homes are arranged across three levels plus rooftop solarium, offering maximum comfort and privacy:
Basement with private garage for 2 cars and access to a patio
Ground floor with open-plan living room and kitchen leading to a garden and private pool, 1 bedroom, and 1 bathroom
First floor with 2 bedrooms, 1 bathroom, and 2 terraces
Rooftop solarium with summer kitchen, ideal for relaxing and enjoying panoramic views
East and west orientations ensure excellent natural light and outdoor living throughout the day.
High-Quality Finishes and Comfort
These houses are built to the highest standards, offering premium features including:
Private swimming pool
Basement garage for 2 cars with motorized door
Aerothermal hot-water system
Fully installed ducted air conditioning
Furnished and equipped kitchen
Fully equipped bathrooms with furniture, mirrors, and shower screens
Security entrance door
Live Between the Sea and the Fairway
Set among lush Mediterranean landscapes, this exclusive community offers peaceful living next to the Serena Golf course, a renowned 18-hole course surrounded by nature and tranquil lakes. The warm, shallow waters of the Mar Menor are perfect for swimming and enjoying water sports such as sailing, paddle surf, and kayaking year-round.
Key distances:
Beach (Mar Menor): 600 m
La Serena Golf: next to the complex
Los Alcázares center: 2 km
Cartagena: 22 km
Murcia city: 40 km
Murcia Airport: 30 km
Alicante Airport: 90 km
Secure Your Mediterranean Lifestyle
Whether you are looking for a permanent residence, a holiday home, or a profitable investment, these houses offer luxury, convenience, and a superior coastal lifestyle.
Contact us today to schedule a viewing and secure your new home in Los Alcázares.
The information provided is for guidance only and does NOT constitute the full facts and details of the properties offered for sale. It is the discretion of the buyer and his legal advisor to establish the full details and legal situation of any property offered for sale before the property is delivered to the notary. All prices are exclusive of additional costs such as tax, notary costs, land registry,...
Co-founder and CEO