2
2
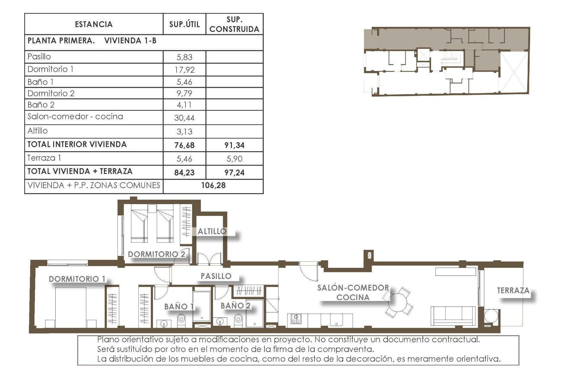
91m2
76m2
Yes
150 Mts.
Modern New Build Apartments in the Heart of Torrevieja
Prime Location Just 150 m from the Sea
This exceptional new development is located in the very centre of Torrevieja, just 150 m from the natural swimming pools and seafront promenade, and only 500 m from Playa del Cura. Surrounded by an extensive range of services including shops, supermarkets, parks, cafés and restaurants, the area offers everything you need within a short walk. Its combination of urban convenience and coastal tranquillity makes it one of the most attractive residential areas in the city.
Contemporary Apartments With 1 and 2 Bedrooms
The development offers modern apartments featuring 1 or 2 bedrooms and 1 or 2 bathrooms, including two exclusive penthouses with private solarium, barbecue and private pool. All homes are designed with open layouts that maximise natural light, incorporating spacious terraces and stylish American style kitchens.
Each apartment includes a fully equipped kitchen with appliances, complete bathrooms with furniture, shower screens and underfloor heating, as well as interior lighting. There is also preinstallation for ducted air conditioning, ensuring year round comfort.
Attractive Communal Areas for Relaxation
Residents can enjoy excellent communal facilities designed for wellbeing and leisure. The ground floor features a refreshing communal pool and a relaxing sauna. The rooftop terrace offers a shared solarium, ideal for sunbathing and taking in the Mediterranean atmosphere.
Enjoy a Unique Coastal and Natural Environment
Torrevieja is renowned for its mild Mediterranean climate, with an average annual temperature of 20 ºC, perfect for year round living. The city is home to the famous salt lakes and the protected Natural Park of La Mata and Torrevieja, located just 4 km from the development. With its vibrant pink and green lagoons, scenic walking routes and diverse wildlife, it provides a healthy and inspiring natural setting.
Distances to Key Points of Interest
Puerto Deportivo de Torrevieja 1 km
Parque Natural de La Mata 4 km
Villamartin Golf 8 km
Alicante Airport 45 km
Murcia Airport 60 km
Live the Mediterranean Lifestyle
Secure your modern home in one of the most sought after coastal cities in the Costa Blanca. Contact us today to schedule a visit and reserve your place in this outstanding new development.
The information provided is for guidance only and does NOT constitute the full facts and details of the properties offered for sale. It is the discretion of the buyer and his legal advisor to establish the full details and legal situation of any property offered for sale before the property is delivered to the notary. All prices are exclusive of additional costs such as tax, notary costs, land registry,...
Co-founder and CEO