3
2
96m2
85m2
24m2
Yes
600 Mts.
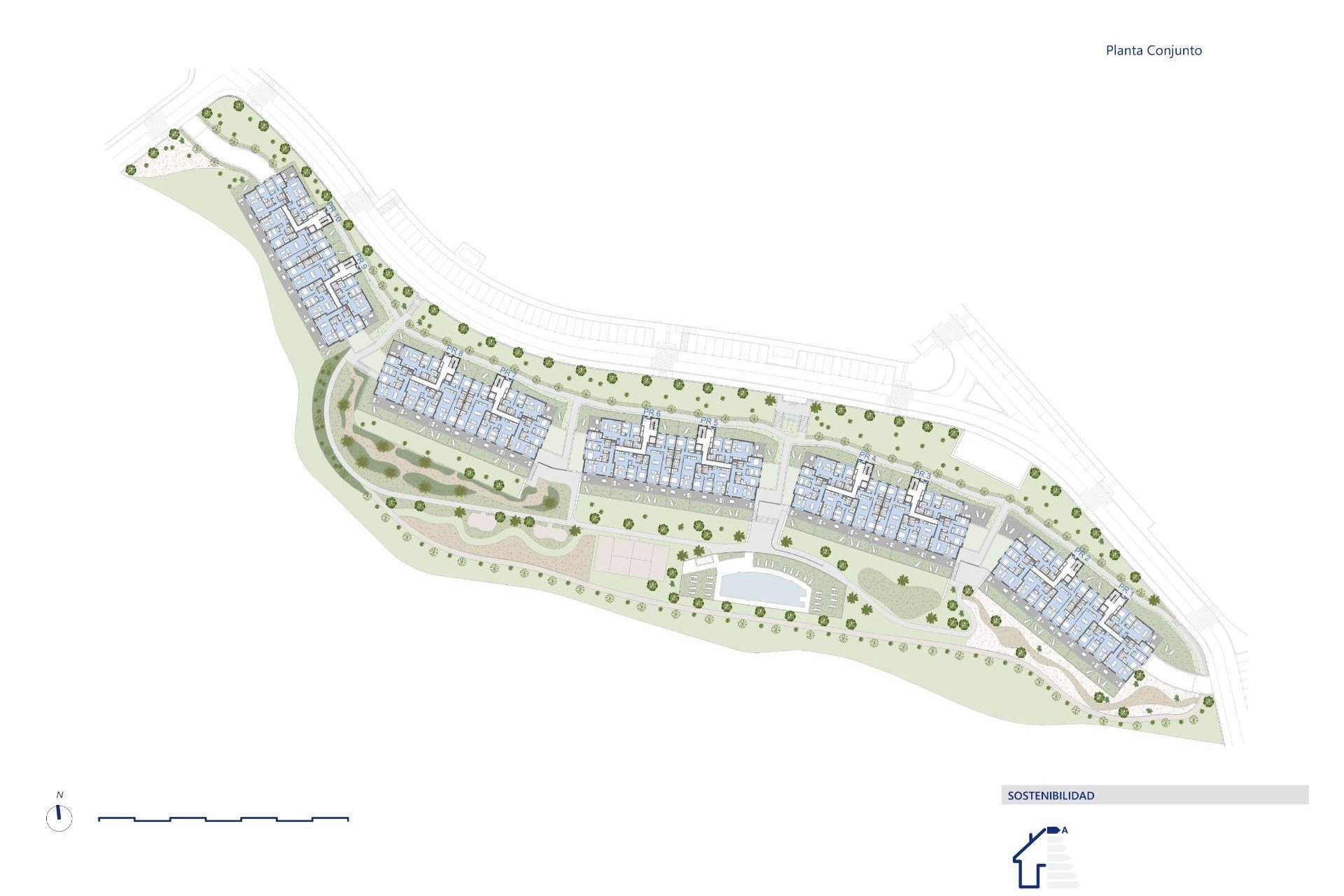
NEW BUILD RESIDENTIAL COMPLEX IN ESTEPONA New Build residential complex located in Estepona where you will find much more than just a house: you will find a beautiful garden where you can extend your home. The complex is made up of 106 multi-family dwellings with 2 and 3 bedrooms with underground parking space and storage room. Within the spacious communal areas we find a large number of plant species surrounding the swimming pool, as well as a gymnasium, outdoor meditation area, spa, communal room with co-working, beach volleyball court, children's area and putting green. All these common uses together with the prominence of the gardens with palm trees, citrus and aromatic plants, as well as paths to cross these green areas, make this development the perfect place to enjoy the climate, nature and tranquillity. The complex is divided into two phases: Phase 1 consists of blocks 1 and 2 (44 dwellings), swimming pool, Putting Green, Spa and Coworking. Phase 2 comprising blocks 3, 4 and 5 (62 homes), gymnasium, children's area, sports court and meditation area. Project designed for year-round living, South oriented. Features: Parking Space Included. Swimming Pool. Gated. Garden areas. Central Heating. Air Conditioning. Near Golf Courses. Storage Space Included. Few minutes from the Beach. Near Hospital. Seaviews. 20 min to Puerto Banús. Spa, Gym, Social Club Area. Beach Volleyball court. Yoga, Meditation area. Estepona is perfect place to enjoy the tranquillity, while you can access a wide range of outdoor sports activities, thanks to its proximity to the Estepona Golf courses and its spectacular beaches. Estepona Golf is an 18-hole course situated between Gibraltar and Puerto Banús; on the new golden mile, just 3 km from the beach and with a wide variety of services and facilities on offer locally.
The information provided is for guidance only and does NOT constitute the full facts and details of the properties offered for sale. It is the discretion of the buyer and his legal advisor to establish the full details and legal situation of any property offered for sale before the property is delivered to the notary. All prices are exclusive of additional costs such as tax, notary costs, land registry,...
Co-founder and CEO