3
2
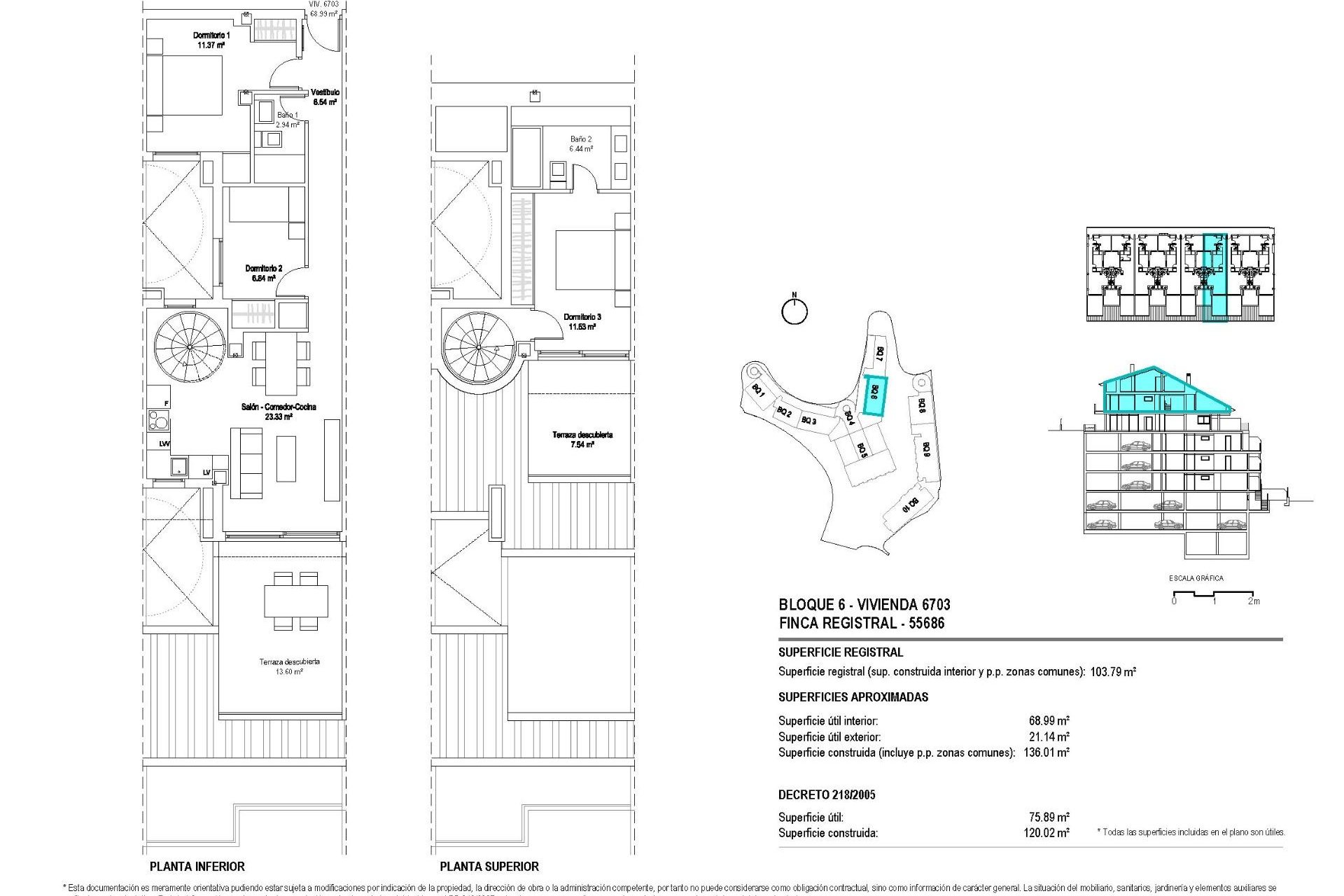
120m2
75m2
Yes
2000 Mts.
NEW BUILD RESIDENTIAL COMPLEX NEAR FUENGIROLA New Build Residential complex is characterised by its ample spaces that offer maximum comfort and quality of life. Fantastic communal areas with tropical gardens and swimming pools to enjoy every day of the year. Complex offers everything you need so that you don't have to leave your Residential Resort, leisure, sports, multipurpose spaces. All the comfort and leisure that will improve your quality of life. The concept of this residential complex has been studied in detail, to offer all the facilities that accompany our lifestyle. Modern facilities, top quality, spacious terraces and excellent communal areas that invite you to enjoy the authentic Mediterranean lifestyle. Accompanied by the best construction materials and qualities, which will make this a unique project that will live up to your expectations. The kitchen is delivered with base units and worktop. Electrical appliances include extractor hood, ceramic hob, sink and tap. Private urbanisation with security checkpoint and access control. The interior urbanisation has 3 outdoor swimming pools, green areas with solarium for parasols and sun loungers with corners to relax and enjoy. Landscaping with native species with low water consumption. Wellness area, sauna, toilets and changing rooms. Social area with convenience store with basic necessities. Gymnasium. New Build residential complex located in Cortijo Torreblanca, near Fuengirola, in the heart of the Costa del Sol. It is a city in constant movement, its wide variety of leisure and cultural options make it a perfect city to live in. The place to grow up and enjoy with your loved ones.
The information provided is for guidance only and does NOT constitute the full facts and details of the properties offered for sale. It is the discretion of the buyer and his legal advisor to establish the full details and legal situation of any property offered for sale before the property is delivered to the notary. All prices are exclusive of additional costs such as tax, notary costs, land registry,...
Co-founder and CEO