3
2
92m2
92m2
Sí
Este moderno apartamento de tres dormitorios está situado en una de las zonas costeras más convenientes de Punta Prima, a un corto paseo de Cala Piteras y del conocido restaurante Nautilus con sus vistas panorámicas al mar. La propiedad combina acabados interiores modernos, una distribución práctica y una ubicación muy buscada dentro de una comunidad residencial establecida. Está completamente amueblada y lista para mudarse.
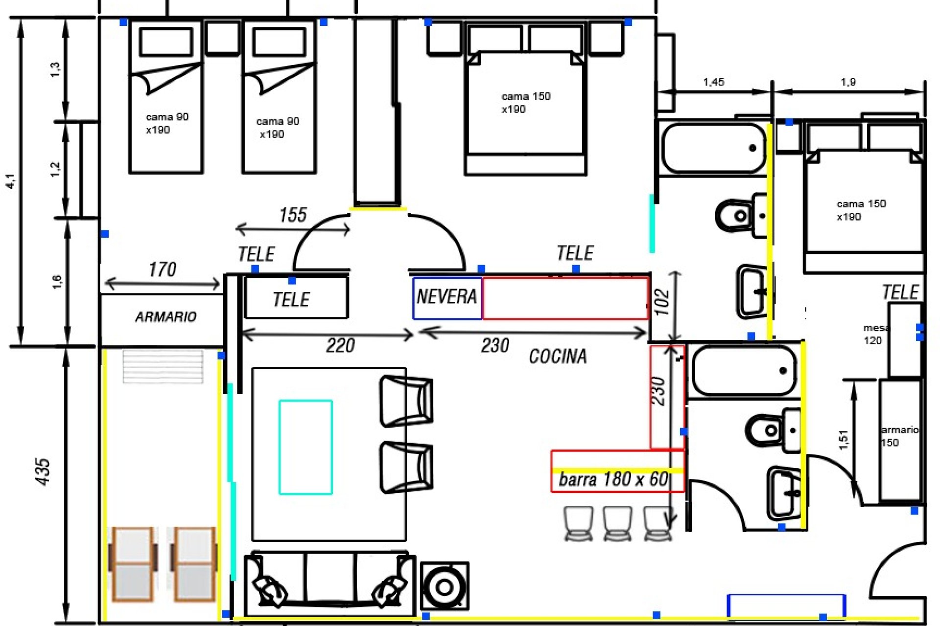
Al entrar, te recibe una zona de estar, cocina y comedor de concepto abierto. Este espacio central forma el corazón del hogar y ha sido diseñado para apoyar tanto la relajación como la socialización. La cocina está completamente renovada e incluye electrodomésticos modernos, un diseño estilo isla y amplios espacios de almacenamiento.
La propiedad ofrece tres dormitorios. El dormitorio principal incluye un baño en suite, dos dormitorios adicionales y un baño bien equipado.
El complejo residencial incluye una piscina comunitaria rodeada de jardines paisajísticos. Estas áreas ofrecen espacio adicional para disfrutar del estilo de vida mediterráneo, ya sea que prefieras nadar, tomar el sol o relajarte a la sombra.
Punta Prima es una de las zonas costeras más consolidadas de la Orihuela Costa, conocida por sus playas accesibles, paseos marítimos y proximidad a servicios esenciales. Cala Piteras, ubicada a unos minutos a pie, es una cala popular reconocida por sus aguas cristalinas y pintorescos senderos costeros. También está cerca el restaurante Nautilus, uno de los lugares de comedor frente al mar más visitados de la zona, que ofrece impresionantes vistas del Mediterráneo.
La posición de la propiedad dentro de Punta Prima asegura un fácil acceso a supermercados, cafeterías, farmacias, transporte público y las comodidades más amplias de la Orihuela Costa. La Zenia Boulevard, varios campos de golf y múltiples playas a lo largo de la costa están a solo un corto trayecto en coche. El Aeropuerto de Alicante está aproximadamente a 45 minutos y el Aeropuerto de Murcia a unos 35 minutos, ofreciendo una excelente conectividad durante todo el año.
La información proporcionada es sólo de orientación y NO constituye todos los hechos y detalles de las propiedades ofrecidas a la venta. Es discreción del comprador y su asesor legal establecer todos los detalles y la situación legal de cualquier propiedad ofrecida a la venta antes de que la propiedad sea entregada al notario. Todos los precios no incluyen costes adicionales como impuestos, gastos notariales, registro de la propiedad,...
Cofundador y director ejecutivo