2
2
73m2
65m2
Oui
250 Mts.
Appartements modernes à vendre à seulement 250 m de la plage El Cura à Torrevieja, Costa Blanca
Nouveau programme immobilier exclusif près de la mer
Ce nouveau complexe résidentiel de 16 logements contemporains est conçu pour capturer l'essence même du style de vie méditerranéen. Situé à seulement 250 mètres de la plage El Cura à Torrevieja (Alicante), ce programme immobilier offre un mélange parfait entre confort, design et emplacement. Avec tous les services à proximité et d'excellentes liaisons de transport public, notamment la gare routière principale accessible à pied, il offre un cadre idéal pour vivre toute l'année ou passer des vacances au bord de la mer.
Design moderne et espaces de vie fonctionnels
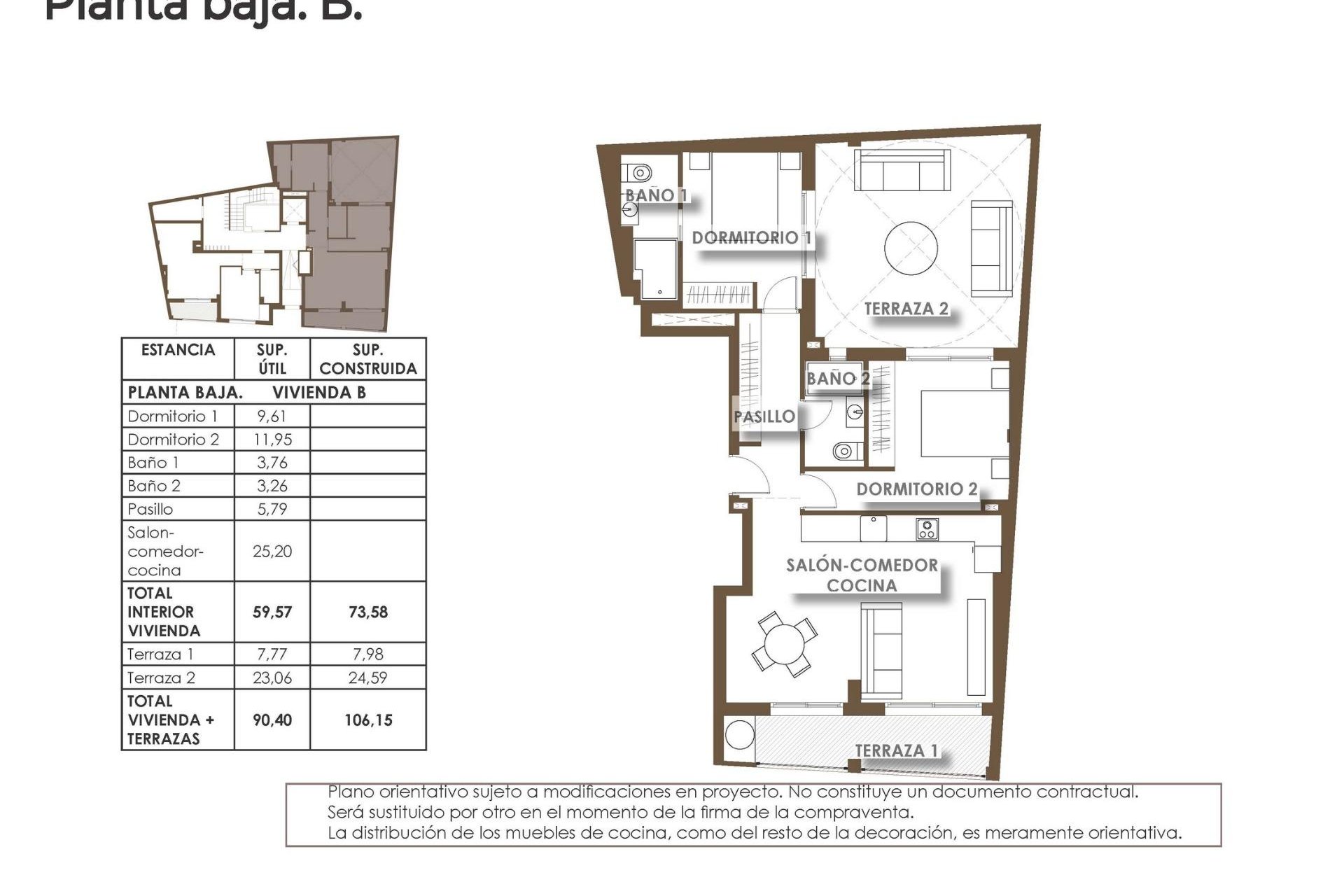
Le complexe comprend une sélection d'appartements de 1 et 2 chambres avec 1 ou 2 salles de bains, offrant différents agencements pour s'adapter à tous les styles de vie. Chaque résidence se caractérise par des espaces lumineux et ouverts, des finitions élégantes et une excellente qualité de construction. Les caractéristiques comprennent des armoires encastrées, la pré-installation de la climatisation centralisée, un accès par ascenseur et des matériaux de haute qualité dans tout le bâtiment.
Les appartements du rez-de-chaussée et les unités standard disposent de terrasses privées idéales pour se détendre en plein air, tandis que les penthouses sont dotés de solariums privés spacieux, parfaits pour prendre un bain de soleil, organiser des dîners ou profiter des magnifiques couchers de soleil méditerranéens.
Des espaces communs exclusifs pour votre plaisir
Le complexe résidentiel est conçu pour le confort et la vie sociale. Les résidents peuvent profiter d'un spectaculaire espace commun sur le toit avec piscine, espaces de bronzage avec chaises longues et zones paysagères, un havre de paix pour se détendre en été.
Emplacement privilégié à Torrevieja
Torrevieja est l'une des destinations les plus populaires de la Costa Blanca, connue pour ses plages cristallines, son climat agréable toute l'année et son atmosphère balnéaire animée. Vivre ici, c'est profiter de promenades quotidiennes le long de la promenade, dîner dans des restaurants en bord de mer et découvrir le mode de vie méditerranéen authentique.
Distances par rapport aux principaux points d'intérêt
Plage d'El Cura : 250 m
Marina et port de Torrevieja : 2 km
Centre commercial Las Habaneras : 3 km
Terrains de golf les plus proches : 7-10 km
Aéroport d'Alicante-Elche : 45 km
La maison idéale en bord de mer
Que vous recherchiez une résidence permanente, une maison de vacances ou une opportunité d'investissement intelligente, ces appartements neufs à Torrevieja offrent la combinaison parfaite entre modernité, charme côtier et commodité.
Contactez-nous dès aujourd'hui pour obtenir plus d'informations ou pour planifier votre visite et acquérir la maison de vos rêves à quelques pas de la plage El Cura à Torrevieja.
Les informations fournies sont à titre indicatif uniquement et ne constituent PAS l'intégralité des faits et des détails des propriétés proposées à la vente. Il est à la discrétion de l'acheteur et de son conseiller juridique d'établir tous les détails et la situation juridique de toute propriété proposée à la vente avant que la propriété ne soit remise au notaire. Tous les prix s'entendent hors frais supplémentaires tels que taxes, frais de notaire, cadastre,...
Co-fondateur et PDG