5
5
515m2
400m2
822m2
Oui
1500 Mts.
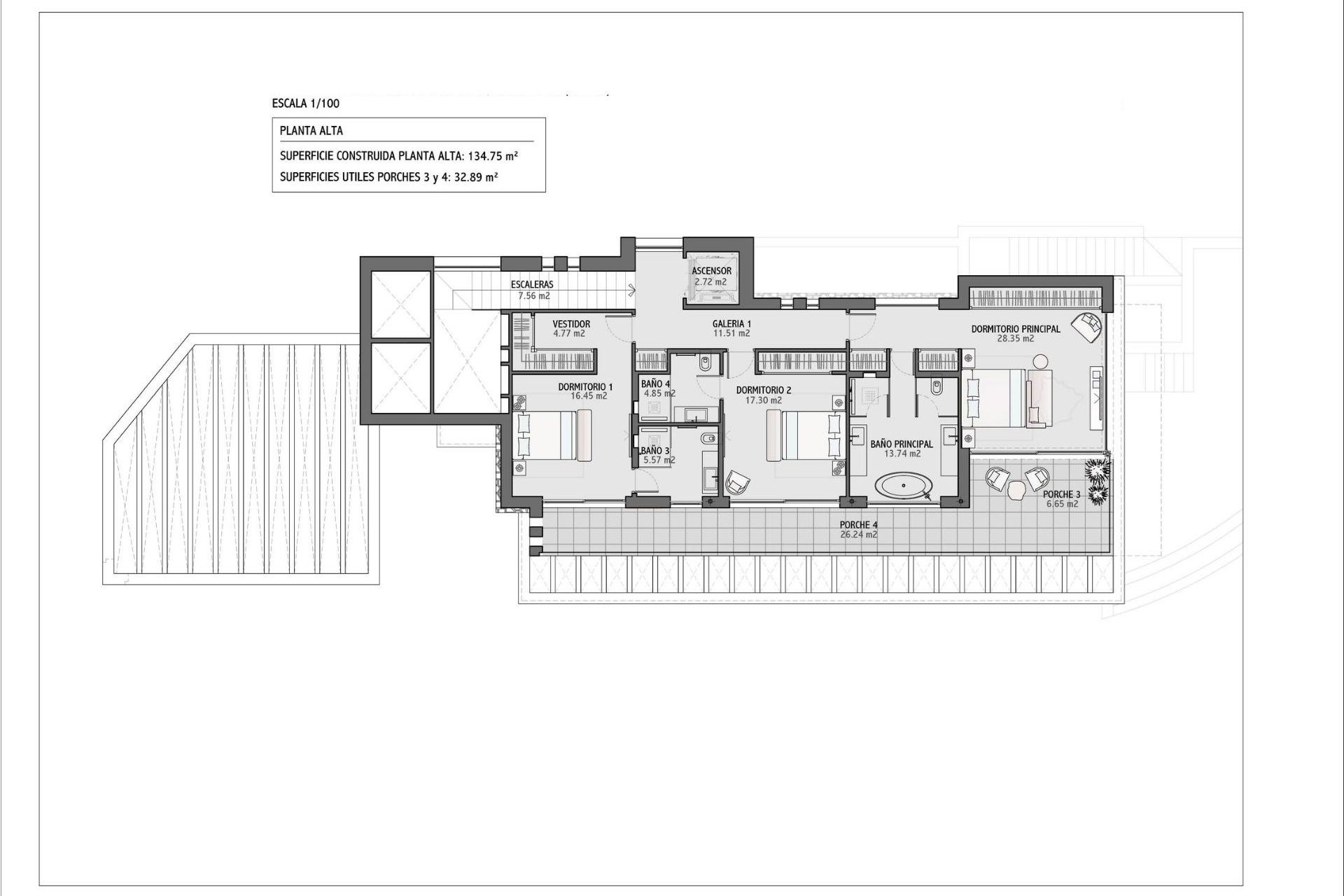
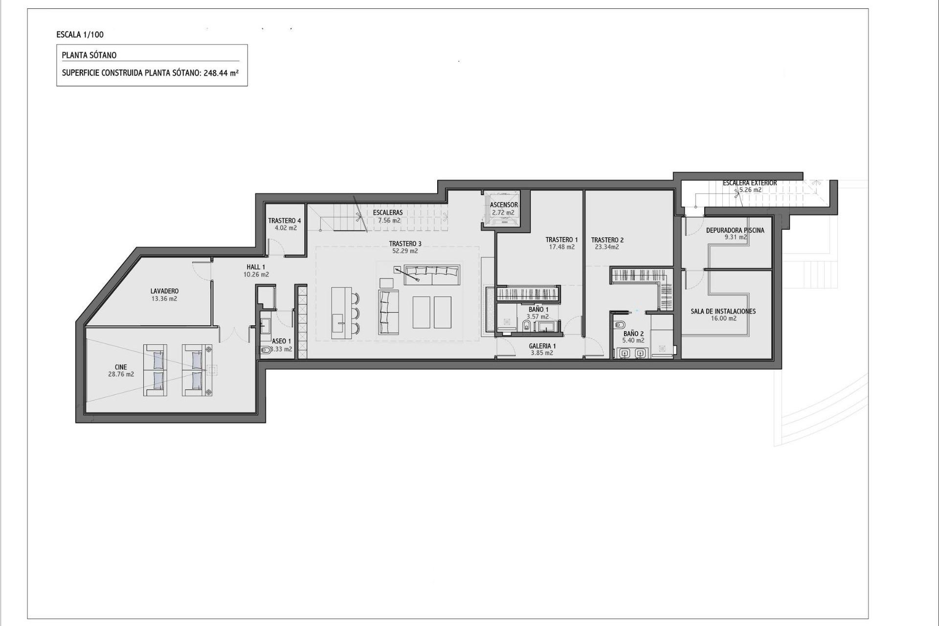
VILLAS NEUVES À BENALMADENA Située dans le prestigieux quartier de La Capellanía, cette collection exclusive de sept villas luxueuses nouvellement construites offre des vues incomparables sur la mer Méditerranée, les montagnes majestueuses et les paysages pittoresques de Mijas et Fuengirola. Le concept Nos projets se caractérisent par un design de pointe, des emplacements de choix et une qualité supérieure, offrant des propriétés de rêve à la clientèle la plus exigeante. Situé au cœur de Benalmadena, La Capellania, un quartier très charmant et bien établi, avec de belles villas espagnoles blanches traditionnelles et des jardins verdoyants. À seulement 15 minutes de l'aéroport de Malaga et à 30 minutes de Marbella, cette promotion élève la zone à un nouveau niveau avec le meilleur des deux mondes. Profitez de la proximité de plages magnifiques, de terrains de golf de classe mondiale, de restaurants gastronomiques et d'attractions culturelles dynamiques. Cette villa unique se compose d'un rez-de-chaussée spacieux avec une cuisine ouverte et un espace de vie qui s'étend sans effort sur de vastes terrasses et un espace de détente au bord de la piscine incurvée à débordement. L'étage supérieur comprend une suite parentale avec une galerie privée, ainsi que trois autres chambres à coucher avec chacune une salle de bains privative, offrant ainsi un grand espace pour la famille et les invités. Le sous-sol comprend une salle polyvalente spacieuse avec un bar, un home cinéma et plusieurs chambres avec salles de bains attenantes, toutes accessibles par un ascenseur privé. EXTÉRIEUR FONDATIONS ET STRUCTURE - Béton armé avec dalles isolées et réticulaires. ENCEINTE EXTÉRIEURE - Mur extérieur en briques céramiques de 12 cm. Isolation en polystyrène extrudé EPS, 4 cm d'isolation Rockwoll ou similaire et double support intérieur en placoplâtre. TOITURE - Toit plat non praticable avec isolation XPS 12 cm dans la zone couverte. - Tuiles pour panneaux solaires. FAÇADE - Enduit monocouche gratté blanc et murs en pierre décorés, selon les spécifications du projet. - Peintures MENUISERIE EXTÉRIEURE - Cadres en aluminium Schüco avec rupture de pont thermique, encastrés dans le plancher du salon. - Stores électriques vénitiens intégrés dans la menuiserie de Griesser. REVÊTEMENT DE SOL EXTÉRIEUR - Porcelanosa 100×100 cm. ÉCLAIRAGE EXTÉRIEUR - Luminaires muraux extérieurs et balises de jardin selon les spécifications du Design Extérieur (si applicable). EXTÉRIEUR - Espaces verts communs : Finition conforme aux spécifications de l'aménagement paysager, avec système d'irrigation et éclairage. - Piscine privée à débordement : Selon le projet de conception. CLOISONS INTÉRIEURES - Brique acoustique, double, renforcée, avec isolation thermique et acoustique "laine de roche" si nécessaire dans les zones définies par le cahier des charges de l'aménagement intérieur. - Faux plafonds dans toutes les pièces. - Plafonds insonorisants dans les espaces de vie. REVÊTEMENT DE SOL INTÉRIEUR - Porcelanosa 100×100 cm et parquet dans les chambres. - Plinthe de 7 cm intégrée aux murs. ÉCLAIRAGE INTÉRIEUR - LED intérieures dans tout le bâtiment. - Lumière LED indirecte dans les boîtes à rideaux et plafond insonorisant dans le salon. - Interrupteurs et prises : Bticino Living Now PEINTURE - Blanc lisse RAL 9010. REVÊTEMENTS DE SALLE DE BAINS - Céramique haut de gamme de Porcelanosa. CHAUFFAGE ET CLIMATISATION - Climatisation par gaines avec pompe à chaleur à détente directe. - Zone d'air Radiateur sèche-serviettes électrique dans les salles de bains. - Chauffage au sol à eau dans tout le bâtiment. - Chauffage électrique par le sol dans les salles de bains. - Chauffage électrique aérothermique. - Installation de renouvellement et d'extraction d'air. Dans les environs immédiats, tous les services sont disponibles, comme les restaurants, le golf, les supermarchés, les écoles, les centres de santé, la gare Renfe, etc. Benalmádena est l'une des villes les plus dynamiques et attrayantes de la Costa del Sol. Son climat doux tout au long de l'année, ses belles plages, son large éventail d'activités de loisirs, ses infrastructures et ses bonnes communications en font l'endroit idéal pour ceux qui souhaitent investir dans la qualité de vie et le bien-être.
Les informations fournies sont à titre indicatif uniquement et ne constituent PAS l'intégralité des faits et des détails des propriétés proposées à la vente. Il est à la discrétion de l'acheteur et de son conseiller juridique d'établir tous les détails et la situation juridique de toute propriété proposée à la vente avant que la propriété ne soit remise au notaire. Tous les prix s'entendent hors frais supplémentaires tels que taxes, frais de notaire, cadastre,...
Co-fondateur et PDG