3
2
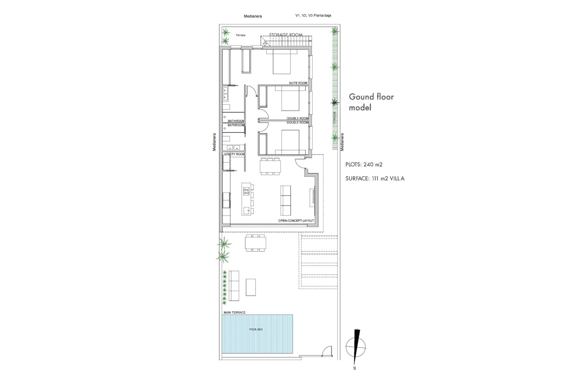
111m2
95m2
240m2
Oui
1500 Mts.
Villas neuves avec piscine privée près du parcours de golf La Serena à Los Alcázares Complexe résidentiel exclusif près du golf et de la plage Découvrez ce complexe résidentiel exclusif composé de seulement huit villas neuves indépendantes, idéalement situé entre le parcours de golf La Serena et la charmante ville côtière de Los Alcázares. Situées à seulement 1 500 mètres des plages du Mar Menor, ces demeures offrent la combinaison parfaite entre golf, mer et art de vivre méditerranéen. Cet emplacement permet aux résidents de profiter d'un accès à pied au parcours de golf et au centre-ville, où l'on trouve un large choix de restaurants, de boutiques, de cafés et de services essentiels. Los Alcazares est réputée pour son atmosphère détendue, sa longue promenade et ses eaux chaudes et peu profondes, ce qui en fait une destination prisée tant par les vacanciers que par les résidents permanents. Villas modernes aux agencements flexibles Ces villas contemporaines sont disponibles en configurations de deux ou trois chambres, avec des options de conception sur un seul niveau ou sur deux niveaux. Construites sur des terrains privés à partir de 200 m², chaque maison est conçue pour optimiser l'espace, le confort et la lumière naturelle. Toutes les villas disposent d'une piscine privée et d'un parking sur le terrain, créant un environnement extérieur privé et fonctionnel, idéal pour profiter du climat ensoleillé toute l'année. Les villas de plain-pied comprennent un solarium privé sur le toit, parfait pour prendre le soleil ou se détendre en profitant d’une vue dégagée. Les villas à deux niveaux offrent de spacieuses terrasses à l’étage supérieur, offrant ainsi des espaces de vie extérieurs supplémentaires. Espaces de vie ouverts et connexion avec l’extérieur L’aménagement intérieur met l’accent sur les espaces de vie ouverts, avec des salons et salles à manger lumineux reliés de manière fluide à des cuisines modernes. De grandes baies vitrées laissent la lumière naturelle envahir les espaces tout en offrant un accès direct aux terrasses et aux espaces piscine. Cette conception met en valeur le style de vie entre intérieur et extérieur qui caractérise la vie sur la Costa Calida, faisant de ces villas un lieu idéal tant pour la vie quotidienne que pour recevoir des invités. Finitions de haute qualité et équipements modernes Les villas sont construites selon des normes élevées, avec des matériaux de qualité et des marques de confiance. Elles comprennent notamment une porte d'entrée de sécurité renforcée de marque DIERRE, des armoires encastrées et des cuisines modernes équipées d'appareils électroménagers BOSCH. Les spécifications supplémentaires comprennent un système aérothermique pour l'eau chaude, des volets motorisés et un portail d'accès automatisé. Chaque détail a été soigneusement pensé pour offrir confort, efficacité et commodité. Emplacement de choix sur la Costa Calida Los Alcazares bénéficie d'un excellent emplacement avec un accès facile aux plages, aux terrains de golf et aux réseaux de transport. Les plages du Mar Menor se trouvent à seulement 1,5 km, tandis que le golf La Serena est accessible à pied. Parmi les autres distances importantes, citons l'aéroport de Murcie-Corvera à 35 km, Carthagène à 25 km, la ville de Murcie à 50 km et l'aéroport d'Alicante à 90 km. Une opportunité idéale d'investissement ou de résidence secondaire Ces villas neuves offrent une occasion rare d'acquérir une propriété moderne dans un emplacement de choix, à proximité de la mer et d'un parcours de golf. Contactez-nous dès aujourd'hui pour obtenir plus d'informations ou pour organiser une visite et réserver votre nouvelle villa à Los Alcazares.
Les informations fournies sont à titre indicatif uniquement et ne constituent PAS l'intégralité des faits et des détails des propriétés proposées à la vente. Il est à la discrétion de l'acheteur et de son conseiller juridique d'établir tous les détails et la situation juridique de toute propriété proposée à la vente avant que la propriété ne soit remise au notaire. Tous les prix s'entendent hors frais supplémentaires tels que taxes, frais de notaire, cadastre,...
Co-fondateur et PDG