2
2
82m2
70m2
151m2
Oui
15000 Mts.
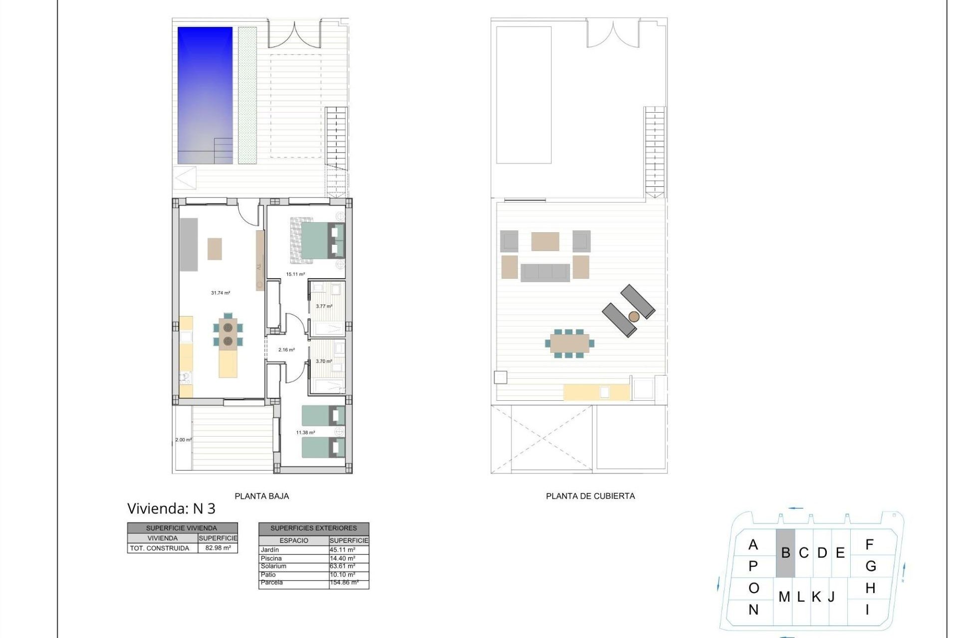
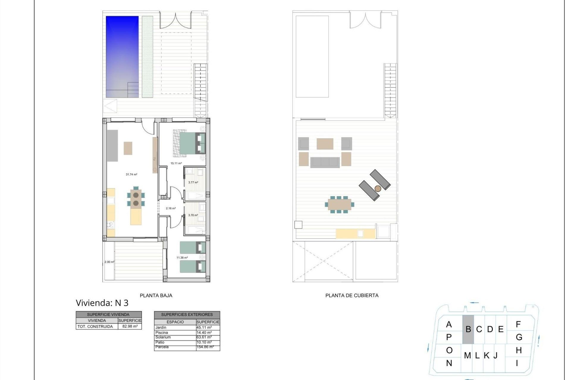
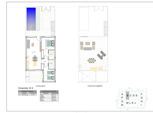
Maisons jumelées et mitoyennes modernes, récemment construites, avec piscine privée à El Alba Resort-Torre Pacheco Des maisons contemporaines dans une communauté de vacances méditerranéenne en plein essor Ce nouveau programme immobilier comprend 16 maisons jumelées et mitoyennes exclusives, situées au sein du complexe El Alba Mediterranean Resort à Torre Pacheco. Conçues comme des maisons de plain-pied, ces propriétés modernes offrent un mélange parfait de confort, de fonctionnalité et de vie en plein air à la méditerranéenne. El Alba Resort est un quartier résidentiel en plein essor, entouré de campagne et de terrains de golf, à proximité de la ville de Roldán, où vous trouverez des supermarchés, des restaurants, des banques et toutes les commodités quotidiennes. Le complexe dispose déjà d'un club social avec piscine et restaurant, et une zone commerciale est actuellement en cours de développement, ajoutant encore plus de commodité et de valeur à l'emplacement. Maison de plain-pied avec jardin privé et terrasse ensoleillée Chaque propriété comprend 2 chambres et 2 salles de bains, dont une attenante, ainsi qu’une cuisine ouverte reliée à un salon lumineux. L’agencement est soigneusement pensé pour maximiser la lumière naturelle et créer une transition harmonieuse entre les espaces intérieurs et extérieurs. Toutes les maisons comprennent : Cuisine équipée avec appareils électroménagers Salles de bains avec meubles-lavabos, miroirs, éclairage et parois de douche Des armoires encastrées avec tiroirs dans les chambres Une pré-installation pour la climatisation par conduits Un éclairage LED intérieur et extérieur Trois panneaux solaires photovoltaïques d'une capacité de 1,5 kW par logement Les espaces extérieurs sont conçus pour être appréciés toute l'année, avec un jardin privé doté d'une piscine, une terrasse et une grande terrasse ensoleillée privée avec une cuisine d'été, idéale pour les repas en plein air et la détente au soleil. Des équipements de qualité conçus pour le confort et l'efficacité Ces maisons sont construites avec des intérieurs élégants et fonctionnels, axés sur l'efficacité énergétique et la vie moderne. Le terrain dispose d'une place de parking privée, garantissant commodité et sécurité. La combinaison de panneaux solaires, d'une isolation de haute qualité et d'une conception intelligente offre une maison économe en énergie, idéale pour une résidence principale, une résidence secondaire ou un investissement locatif. Emplacement exceptionnel à proximité des terrains de golf, des plages et des aéroports Centre-ville de Roldán à 2 km Plages du Mar Menor à 15 km Plages de la Méditerranée à 20 km La Torre Golf Resort à 5 km Terrazas de la Torre Golf à 6 km Aéroport de Murcie-Corvera à 18 km Carthagène à 30 km Cet emplacement stratégique offre un accès facile aux terrains de golf, aux plages, aux commodités et aux réseaux de transport, tout en bénéficiant d’un cadre résidentiel paisible. Un investissement judicieux sur la Costa Cálida Ces maisons de ville et maisons jumelées de l’El Alba Mediterranean Resort offrent une excellente opportunité d’acquérir une propriété moderne avec piscine privée dans la zone en pleine expansion de Torre Pacheco. Contactez-nous dès aujourd’hui pour obtenir plus d’informations ou pour organiser une visite de ces maisons neuves exclusives.
Les informations fournies sont à titre indicatif uniquement et ne constituent PAS l'intégralité des faits et des détails des propriétés proposées à la vente. Il est à la discrétion de l'acheteur et de son conseiller juridique d'établir tous les détails et la situation juridique de toute propriété proposée à la vente avant que la propriété ne soit remise au notaire. Tous les prix s'entendent hors frais supplémentaires tels que taxes, frais de notaire, cadastre,...
Co-fondateur et PDG