3
2
100m2
80m2
12m2
Oui
1500 Mts.
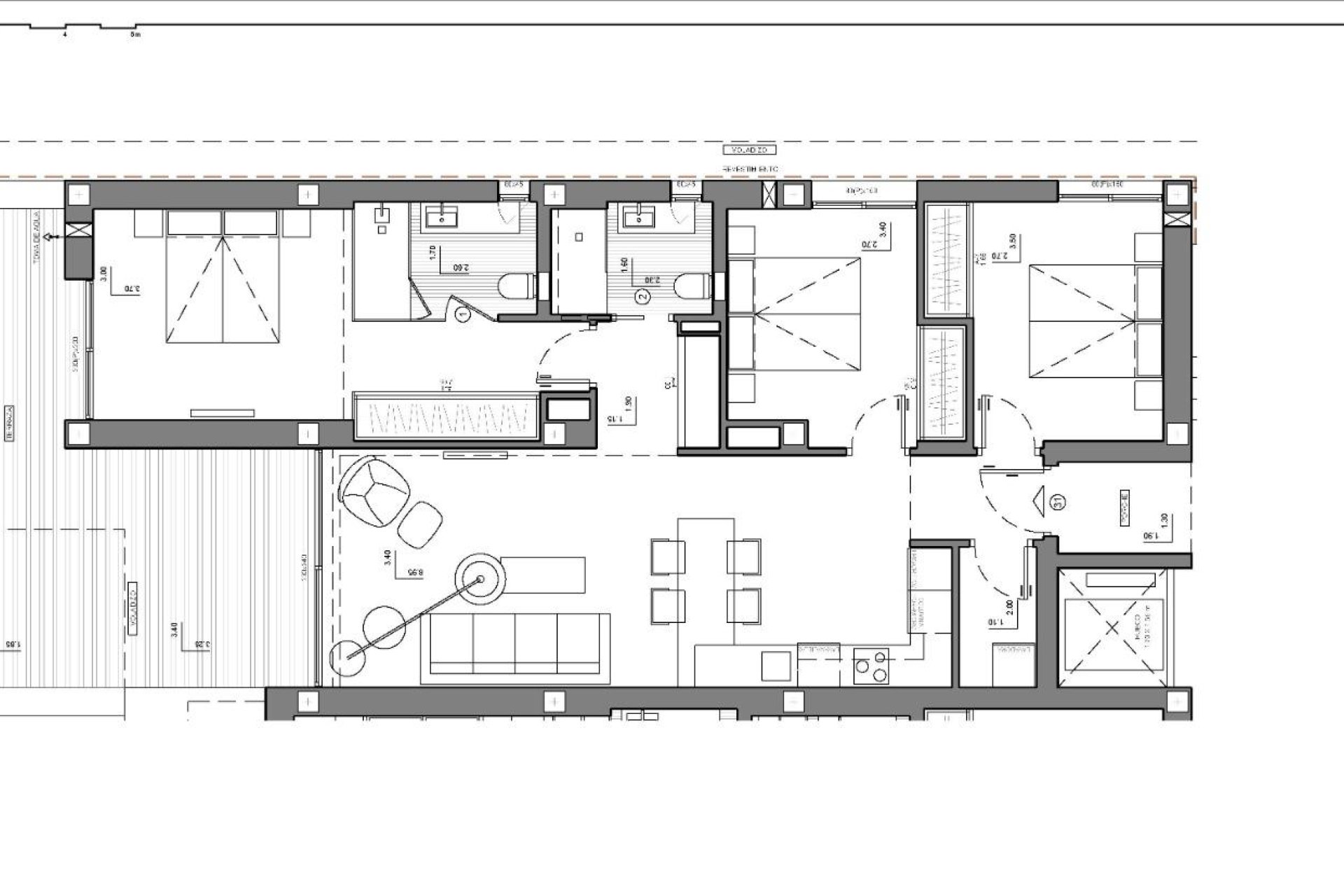
APPARTEMENTS NEUFS À CUMBRE DEL SOL Appartements de nouvelle construction à l'architecture moderne, avec 3 chambres à coucher et 2 salles de bain, cuisine ouverte sur le salon, avec différents modèles au choix, terrasse et jardin dans les appartements du rez-de-chaussée, et solarium au dernier étage, le tout distribué de façon à profiter au maximum de l'espace, en profitant de la lumière méditerranéenne et en offrant un plus de confort dans votre quotidien. L'équipement des appartements est également orienté vers le confort avec un chauffage par le sol, une climatisation chaude et froide par conduits avec thermostat dans le salon, de l'eau chaude par système Altherma, des appareils électroménagers sont inclus et un projet de décoration pour leur donner du style et de la chaleur. Les zones communes sont conçues pour se détendre et profiter en famille, avec une piscine entourée de grandes terrasses pour profiter du soleil, une aire de jeux pour les enfants, un club social, des jardins et des aires de stationnement. À une courte distance de Cala del Llebeig, du centre urbain de Moraira et de tous les services dont dispose le Residential Resort Cumbre del Sol. Residential est entouré d'un environnement exceptionnel, dans lequel ils soulignent de belles vues sur la mer Méditerranée, une promotion idéale pour profiter du temps libre avec la famille dans les zones communes avec diverses piscines, de grandes terrasses pour prendre le soleil, club social, terrains de jeux pour les enfants, aussi parce que pour son emplacement est nous permet de faire plusieurs randonnées comme celle qui nous emmène à Cala Llebeig, une enclave unique sur la Costa Blanca. Vous pouvez également profiter de tous les services inclus dans le Residential Resort Cumbre del Sol, zone commerciale, supermarché, coiffeur, pharmacie, bars et restaurants, terrains de padel et de tennis, chemins de randonnée, école internationale Lady Elizabeth School, centre hipico, plage et criques avec bars de plage, à une courte distance il y a des restaurants de première classe reconnus avec des étoiles Michelin, clubs de golf, clubs nautiques, tous les services dont vous avez besoin pour vivre et profiter toute l'année. L'aéroport d'Alicante se trouve à 1 heure de route.
Les informations fournies sont à titre indicatif uniquement et ne constituent PAS l'intégralité des faits et des détails des propriétés proposées à la vente. Il est à la discrétion de l'acheteur et de son conseiller juridique d'établir tous les détails et la situation juridique de toute propriété proposée à la vente avant que la propriété ne soit remise au notaire. Tous les prix s'entendent hors frais supplémentaires tels que taxes, frais de notaire, cadastre,...
Co-fondateur et PDG