3
4
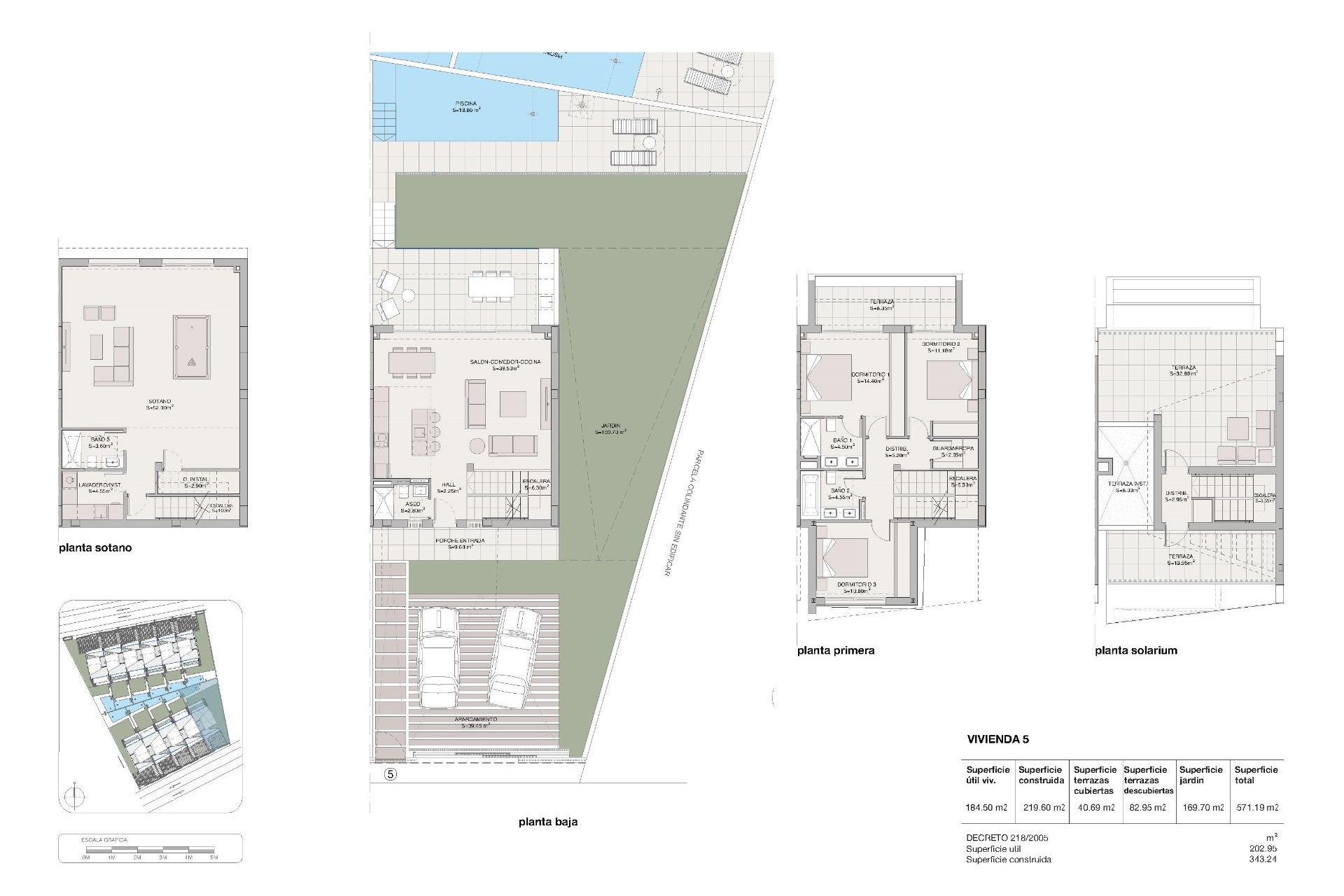
343m2
202m2
169m2
Ja
1500 Mts.
Exklusive Neubau-Wohnanlage in Los Flamingos, Estepona Entdecken Sie die einmalige Gelegenheit, ein Eigenheim in einer der prestigeträchtigsten Gegenden an der Costa del Sol zu erwerben. Diese Neubausiedlung bietet 11 exquisit gestaltete Stadthäuser und Doppelhaushälften im Herzen von Los Flamingos, Estepona. Durch die Kombination von Luxus, Funktionalität und Energieeffizienz ist dieses Projekt perfekt für diejenigen, die einen raffinierten Lebensstil in einer exklusiven Umgebung suchen. Erstklassige Lage an der Costa del Sol Eingebettet in die bekannte Gegend von Los Flamingos, liegt diese Wohnanlage nur 5 Minuten von den unberührten Stränden des Mittelmeers entfernt. Das Stadtzentrum von Estepona ist weniger als 10 Minuten entfernt, während das lebhafte Marbella und das exklusive Sotogrande leicht zu erreichen sind. Der internationale Flughafen von Málaga ist ca. 70 km entfernt, der Flughafen von Gibraltar nur 60 km, und der luxuriöse Yachthafen Puerto Banús ist nur 20 km entfernt. Luxuriöse Häuser mit außergewöhnlichen Eigenschaften Jedes Haus in dieser Siedlung wurde sorgfältig entworfen, um die höchsten Standards an Komfort und Raffinesse zu erfüllen. Diese Häuser umfassen: Drei geräumige Schlafzimmer und vier moderne Bäder Privater Garten, Pool und Parkplatz Ausgedehnte Terrassen und Solarien für das Leben im Freien Hochwertige Ausstattungsmerkmale wie Fußbodenheizung, moderne Haustechnik und energieeffiziente Systeme Hochwertige Verarbeitung und durchdachtes Design Die Liebe zum Detail zeichnet diese Häuser aus. Mit Aluminium-Außentischlerei mit thermischer Trennung, gepanzerten Zugangstüren und indirekter LED-Beleuchtung im gesamten Haus wurde jedes Element sorgfältig ausgewählt. Optionale Zusätze wie ein Aufzug verbessern die Zugänglichkeit, während die automatische Tröpfchenbewässerung dafür sorgt, dass die Gärten mühelos gepflegt werden können. Lebensstil und Annehmlichkeiten Inmitten des ruhigen Los Flamingos Golfplatzes gelegen, bietet diese Gemeinde eine harmonische Mischung aus natürlicher Schönheit und modernem Komfort. Supermärkte, Restaurants und wichtige Dienstleistungen wie das Cancelada Medical Center sind nur 5 Minuten entfernt. Golfliebhaber werden die Nähe zu einem der besten Golfplätze der Costa del Sol zu schätzen wissen, während die nahe gelegenen Wanderwege und der ruhige See einen friedlichen Rückzugsort darstellen. Nahtlose Konnektivität An der Neuen Goldenen Meile gelegen, genießen die Bewohner einen schnellen Zugang zu den Autobahnen A-7 und AP-7, was eine reibungslose Anreise zu wichtigen Zielen gewährleistet. Der Hafen von Estepona (10 km) und Puerto Banús (20 km) bieten Unterhaltung, Einkaufsmöglichkeiten und Restaurants, während der internationale Flughafen von Malaga (70 km) Sie mit der Welt verbindet. Ihr Traumhaus erwartet Sie Erleben Sie die perfekte Mischung aus Luxus, Komfort und Lage in Los Flamingos. Verpassen Sie nicht die Gelegenheit, eine dieser außergewöhnlichen Immobilien zu besitzen. Kontaktieren Sie uns noch heute, um einen Besichtigungstermin zu vereinbaren oder weitere Informationen zu erhalten.
Die bereitgestellten Informationen dienen nur zur Orientierung und stellen NICHT die vollständigen Fakten und Details der zum Verkauf angebotenen Immobilien dar. Es liegt im Ermessen des Käufers und seines Rechtsberaters, vor der Übergabe an den Notar die vollständigen Einzelheiten und die rechtliche Situation einer zum Verkauf angebotenen Immobilie festzustellen. Alle Preise verstehen sich zuzüglich zusätzlicher Kosten wie Steuern, Notarkosten, Grundbucheintrag usw.
Mitbegründer und CEO