3
2
334m2
260m2
43m2
Ja
1200 Mts.
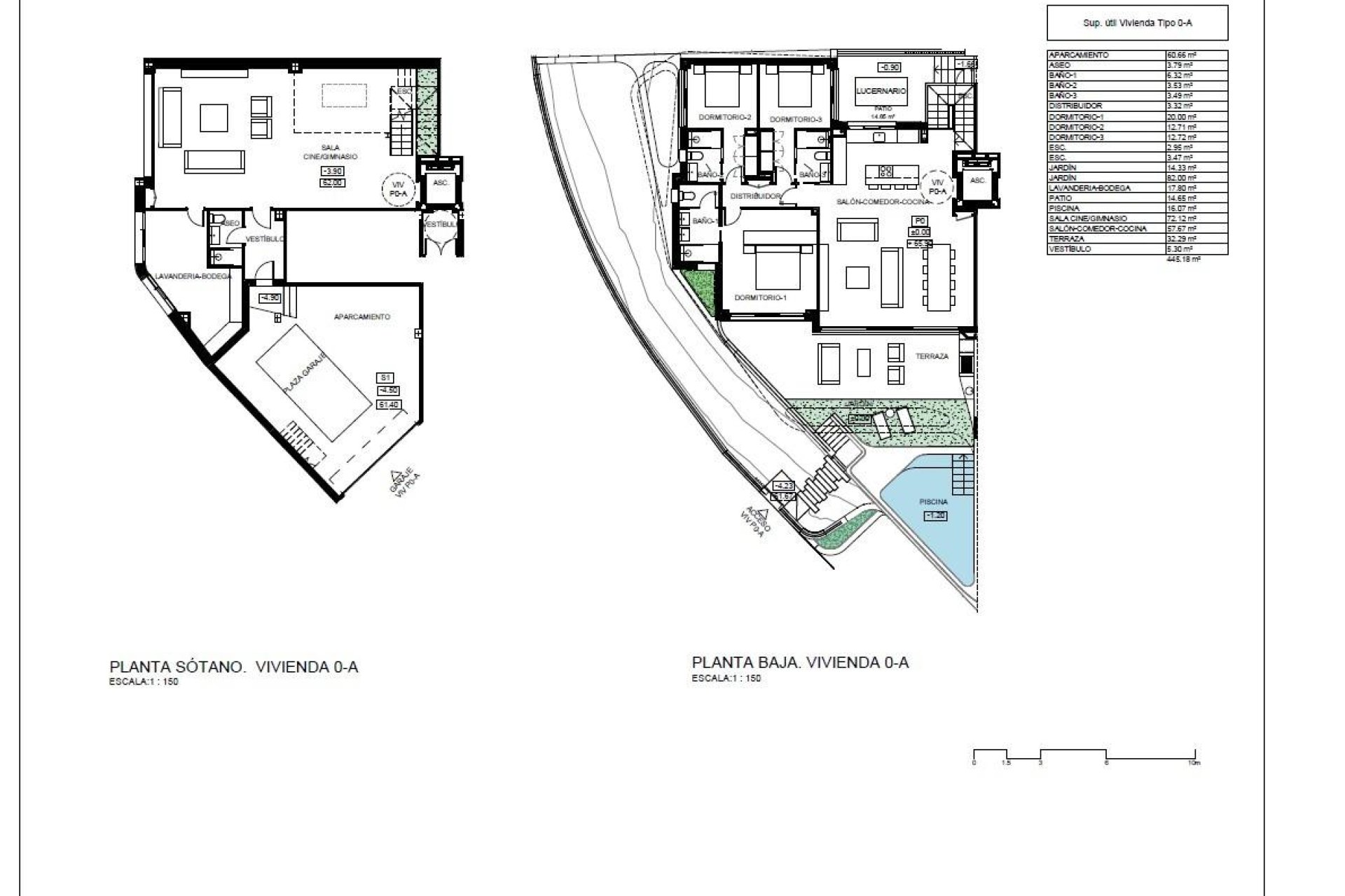
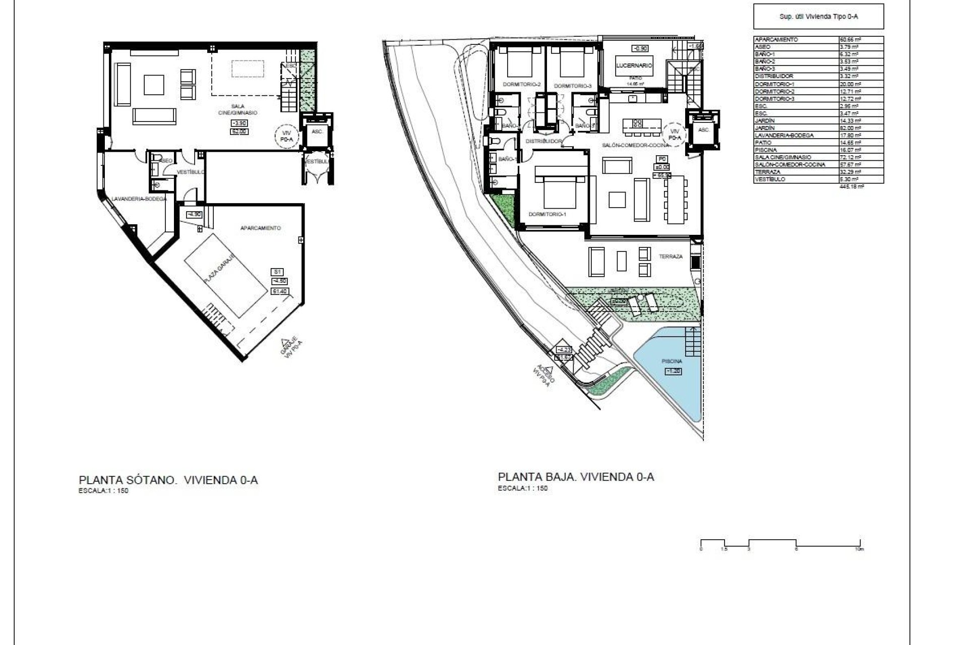
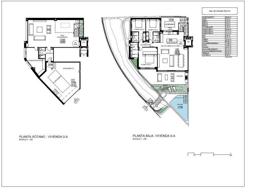
NEU GEBAUTE WOHNANLAGE IN DER NÄHE VON MARBELLA Neubau einer exklusiven Luxus-Wohnanlage bestehend aus 8 Wohnungen mit Meerblick in Cabopino, in der Nähe von Marbella, in der besten Gegend der Costa del Sol. Die südwestliche Ausrichtung garantiert die beste Sonneneinstrahlung und einen spektakulären Panoramablick. Wir haben uns um jedes Detail mit einem innovativen Design gekümmert, eine privilegierte Lage, nur 5 Minuten von den spektakulären Dünen von Artola, für Golfliebhaber können Sie den Golfplatz von Cabo Pino genießen. Die Anlage ist nur 15 Minuten von der Stadt Marbella und 30 Minuten vom Flughafen Málaga entfernt. Der Strand von Artola - Cabopino in der Stadt Marbella ist einer der besten unberührten Strände, die man an der Costa del Sol finden kann. Er ist 1.200 Meter lang und liegt im Naturschutzgebiet Dunas de Artola, das im Jahr 2001 zum Naturdenkmal erklärt wurde. Die Landschaft dieses Strandes besteht aus atemberaubenden Dünen und einer beeindruckenden einheimischen Vegetation, die dem Besucher ein Gefühl von Freiheit und Verbundenheit mit der Natur vermittelt. Der Strand mit seinem feinen, goldfarbenen Sand ist ideal für alle, denn er verfügt über Bereiche für Familien mit Sonnenliegen und Liegestühlen sowie über Strandbars und Restaurants zur Abkühlung. Es gibt auch einen FKK-Strand.
Die bereitgestellten Informationen dienen nur zur Orientierung und stellen NICHT die vollständigen Fakten und Details der zum Verkauf angebotenen Immobilien dar. Es liegt im Ermessen des Käufers und seines Rechtsberaters, vor der Übergabe an den Notar die vollständigen Einzelheiten und die rechtliche Situation einer zum Verkauf angebotenen Immobilie festzustellen. Alle Preise verstehen sich zuzüglich zusätzlicher Kosten wie Steuern, Notarkosten, Grundbucheintrag usw.
Mitbegründer und CEO