2
1
69m2
127m2
Yes
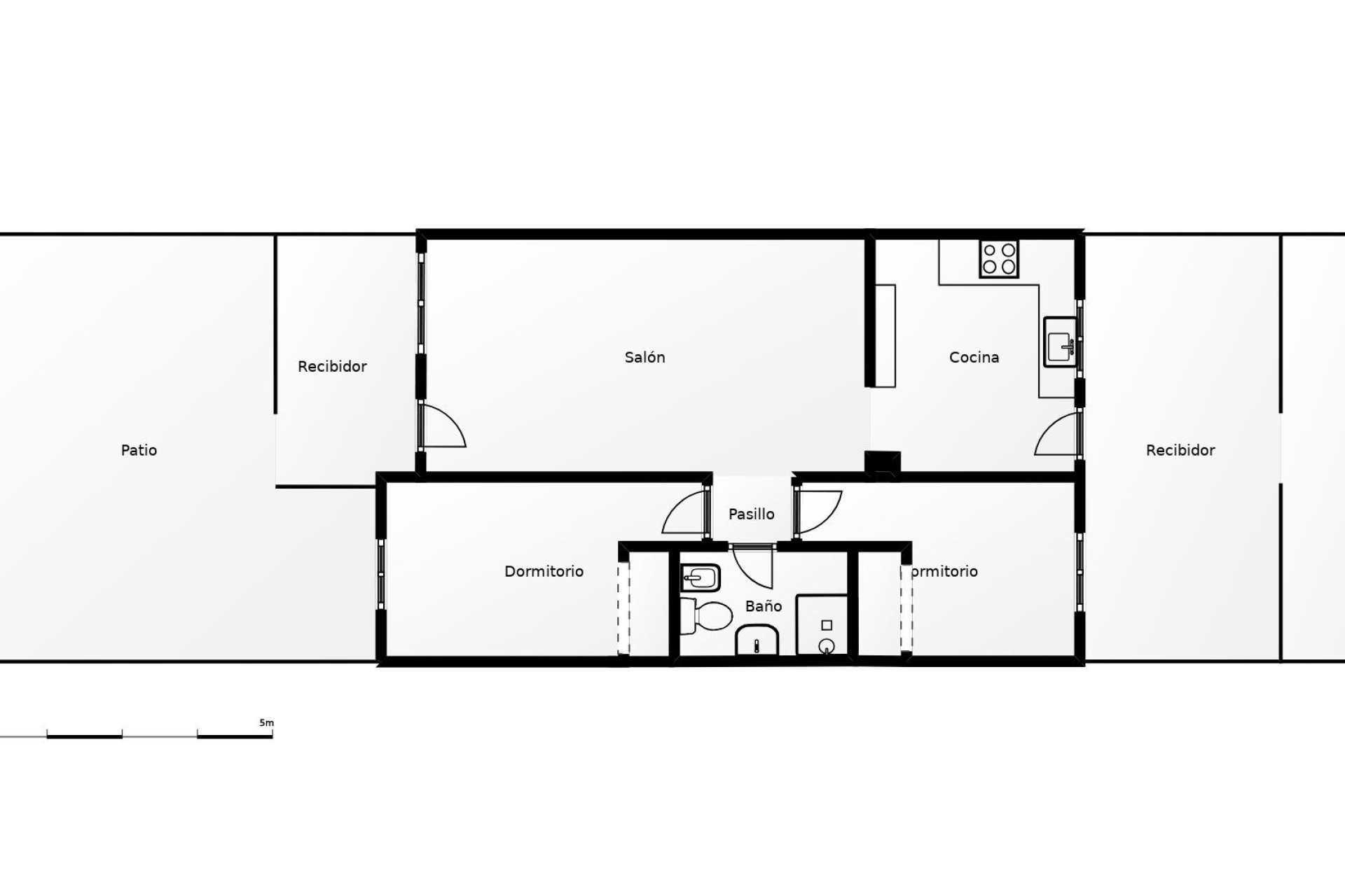
Ground floor bungalow in the PAU 26 area of Orihuela Costa, a quiet and well-connected location, ideal both as a permanent residence and for holiday stays.~~The property features north and south orientations, ensuring excellent ventilation and natural light throughout the day. At the front, there is a pleasant outdoor garden with direct access to the house, perfect for enjoying the outdoors or creating a cozy relaxation area.~~At the back, there is a large south-facing patio, ideal for enjoying the sun, with direct access to the communal swimming pool, located within a well-maintained residential complex surrounded by greenery.~~Inside, the property offers a spacious living room with open-plan kitchen, creating a functional and comfortable space for daily living. It includes two bright bedrooms and a fully equipped bathroom, all in excellent condition and ready to move in.~~Its location is excellent, very close to the renowned Campo de Golf Villamartín, the popular Zenia Boulevard, and supermarkets and other services within minutes, providing convenience and quality of life all year round.~~Additionally, the property has been rented several times as a long-term rental, making it an excellent option as an investment, offering proven rental potential.~~An ideal opportunity for those seeking tranquility, sun, and proximity to all services on the Costa Blanca, with the added benefit of a property with a stable rental history.~~Price: €169,000~Taxes and purchase costs not included (according to applicable regulations). A detailed breakdown of additional costs will be provided prior to reservation.~Price: €169,000~Taxes and purchase costs not included (according to applicable regulations). A detailed breakdown of additional expenses will be provided prior to reservation.~~In the case of a transaction with dual agency, professional fees payable by the buyer will be 1.5% of the final purchase price, with a minimum of €3,000, plus VAT (21%), unless expressly agreed otherwise. These fees are not included in the advertised price.
The information provided is for guidance only and does NOT constitute the full facts and details of the properties offered for sale. It is the discretion of the buyer and his legal advisor to establish the full details and legal situation of any property offered for sale before the property is delivered to the notary. All prices are exclusive of additional costs such as tax, notary costs, land registry,...
Co-founder and CEO