2
1
69m2
127m2
Ja
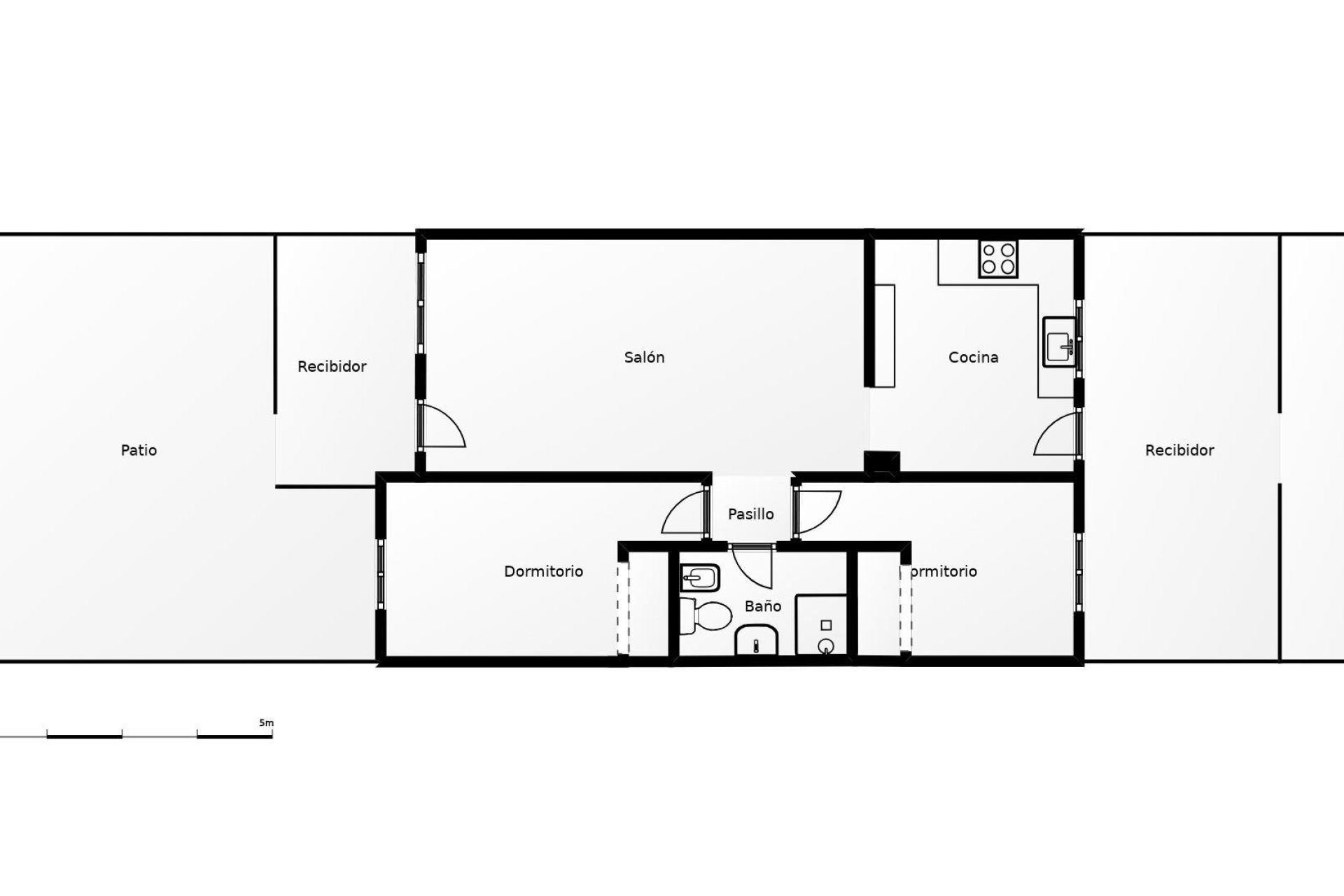
Bungalow op de begane grond in de PAU 26-omgeving van Orihuela Costa, een rustige en goed verbonden locatie, ideaal als permanente woning of voor vakanties.~~De woning heeft een noord- en zuidoriëntatie, wat zorgt voor uitstekende ventilatie en veel natuurlijk licht gedurende de dag. Aan de voorzijde is er een aangename tuin met directe toegang tot het huis, perfect om van de buitenlucht te genieten of een gezellige zithoek te creëren.~~Aan de achterzijde is er een ruim patio op het zuiden, ideaal om van de zon te genieten, met directe toegang tot het gemeenschappelijke zwembad, gelegen in een goed onderhouden wooncomplex omgeven door groen.~~Binnen biedt de woning een ruime woonkamer met open keuken, wat een functionele en comfortabele leefruimte creëert. Er zijn twee lichte slaapkamers en een volledig uitgeruste badkamer, alles in uitstekende staat en klaar om te betrekken.~~De locatie is uitstekend, zeer dicht bij de gerenommeerde Campo de Golf Villamartín, het populaire Zenia Boulevard en supermarkten en andere voorzieningen op slechts enkele minuten afstand, wat gemak en kwaliteit van leven het hele jaar door biedt.~~Daarnaast is de woning meerdere keren verhuurd als langetermijnverhuur, waardoor het ook een uitstekende optie als investering is, met bewezen verhuurpotentieel.~~Een ideale kans voor wie rust, zon en nabijheid van alle voorzieningen aan de Costa Blanca zoekt, met het extra voordeel van een woning met een stabiele verhuurgeschiedenis.~Prijs: €169.000~Belastingen en aankoopkosten niet inbegrepen (volgens de geldende regelgeving). Een gespecificeerde opgave van de bijkomende kosten wordt vóór de reservering verstrekt.~~In geval van een transactie met dubbele bemiddeling bedragen de door de koper te betalen makelaarskosten 1,5% van de uiteindelijke aankoopprijs, met een minimum van €3.000, plus btw (21%), tenzij uitdrukkelijk anders overeengekomen. Deze kosten zijn niet inbegrepen in de geadverteerde prijs.
De vermelde informatie is slechts een leidraad en vormt NIET de volledige feiten en details van de te koop aangeboden eigendommen. Het is het oordeel van de koper en zijn juridisch adviseur om de volledige details en de juridische situatie van elk te koop aangeboden onroerend goed vast te stellen voordat het onroerend goed bij de notaris wordt opgeleverd. Alle prijzen zijn exclusief bijkomende kosten zoals belasting, notariskosten, kadaster,...
Medeoprichter en CEO