3
2
95m2
80m2
185m2
Sí
3500 Mts.
BUNGALOWS DE OBRA NUEVA EN RODA GOLF
Complejo residencial de nueva construcción situado en una parcela orientada al sur dentro del prestigioso Roda Golf & Beach Resort, bordeando el campo con sus cuidadas calles y lagos.
Este hermoso complejo consta de 37 amplias viviendas que rodean una impresionante piscina y jardines comunitarios.
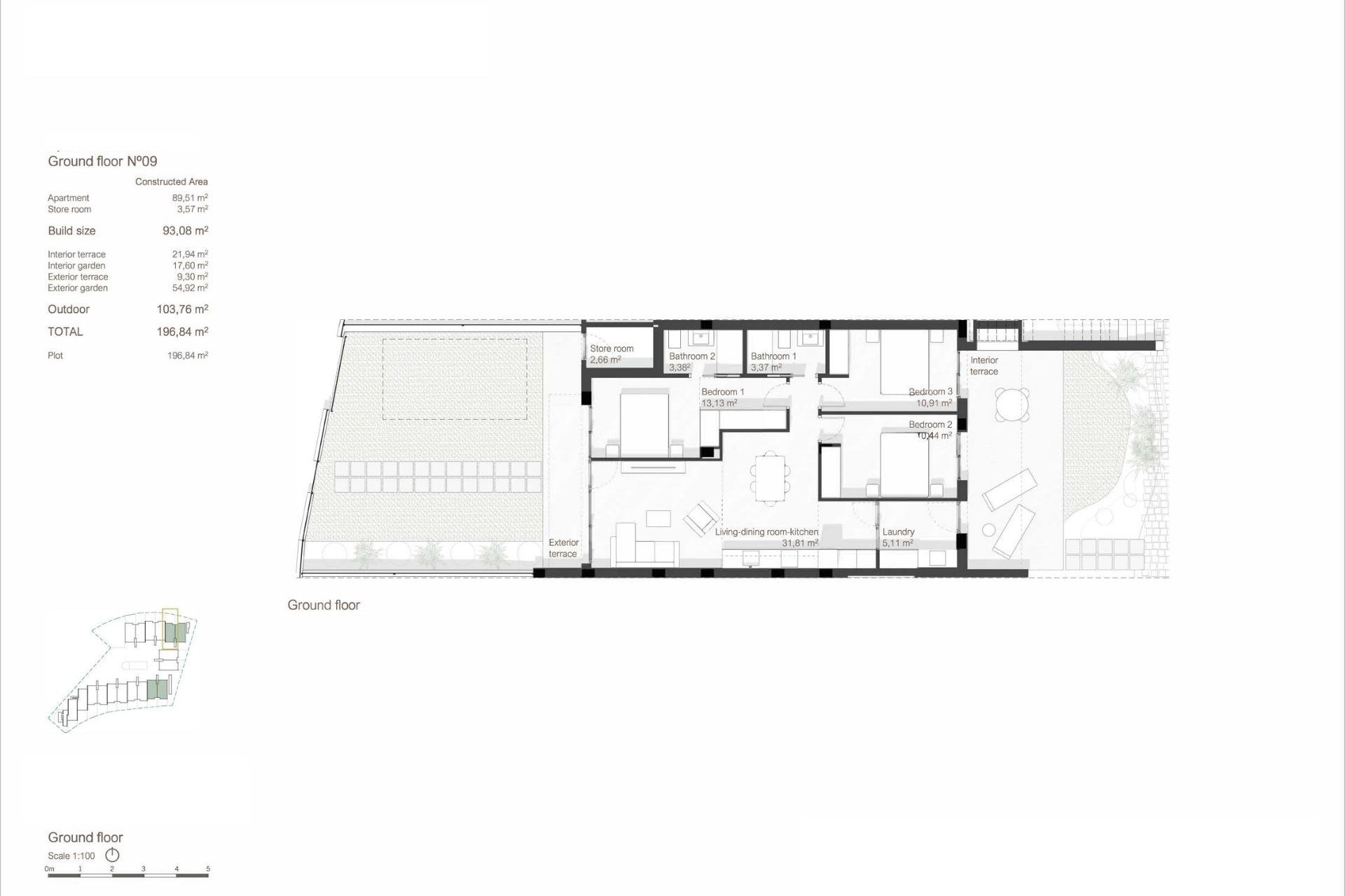
Este moderno residencial ofrece una gama de tipos de propiedad, vistas y orientaciones, de acuerdo a sus necesidades. Todos los bungalows disponen de 3 dormitorios dobles, 2 baños, un amplio y luminoso salón-comedor con cocina americana y un fantástico espacio exterior. Todos incluyen aparcamiento fuera de la carretera y un trastero privado.
Los 18 bungalows de la planta baja cuentan con una terraza interior y un jardín que dan a los jardines comunitarios y a la zona de la piscina, así como una gran terraza trasera cerrada y un jardín.
Los 18 áticos cuentan con un balcón frontal en el salón, así como un fantástico solarium privado de 90m2 con cocina de verano.
El complejo residencial se ha diseñado para aprovechar al máximo el espacio y la luz. Magníficamente construida e incluyendo una amplia gama de extras, esta exclusiva promoción es un verdadero oasis en la Costa Cálida española.
En el corazón de la urbanización se encuentra una impresionante zona de piscina comunitaria, rodeada de vegetación mediterránea. Con sol todo el día gracias a su orientación sur, es el lugar perfecto para nadar, relajarse y disfrutar del sol murciano.
Además de disfrutar de un fantástico espacio interior, las viviendas de la planta baja cuentan con una hermosa terraza delantera y un jardín privado adicional que conduce al interior de la urbanización con sus impresionantes jardines comunitarios y zona de piscina.
Además, ofrecen una terraza trasera y un jardín cerrado para la máxima privacidad, con una puerta que conduce al exterior de la urbanización. La doble orientación garantiza que las viviendas disfruten de sol y sombra durante todo el día.
Un precioso campo de 18 hoyos diseñado por Dave Thomas con lagos, bunkers estratégicamente situados, greens ondulados y exuberante vegetación mediterránea. Un complejo privado con seguridad 24 horas, su propia parada de taxis, una impresionante casa club con restaurante a la carta, gimnasio con vistas al lago y zona deportiva. Y todo ello a un paseo o en bicicleta de las playas y tranquilas aguas de la laguna interior del Mar Menor.
Este residencial tiene una fantástica selección de playas de arena dorada a sus puertas, así como una amplia gama de deportes acuáticos. Disfrute tanto del Mar Menor como del Mediterráneo desde este paraíso de la costa murciana.
La información proporcionada es sólo de orientación y NO constituye todos los hechos y detalles de las propiedades ofrecidas a la venta. Es discreción del comprador y su asesor legal establecer todos los detalles y la situación legal de cualquier propiedad ofrecida a la venta antes de que la propiedad sea entregada al notario. Todos los precios no incluyen costes adicionales como impuestos, gastos notariales, registro de la propiedad,...
Cofundador y director ejecutivo