3
2
95m2
80m2
185m2
Ja
3500 Mts.
NIEUWBOUW BUNGALOWS IN RODA GOLF
Nieuwbouwcomplex gelegen op een perceel op het zuiden in het prestigieuze Roda Golf & Beach Resort, grenzend aan de golfbaan met zijn gemanicuurde fairways en meren.
Dit prachtige complex bestaat uit 37 ruime woningen rond een prachtig zwembad en gemeenschappelijke tuinen.
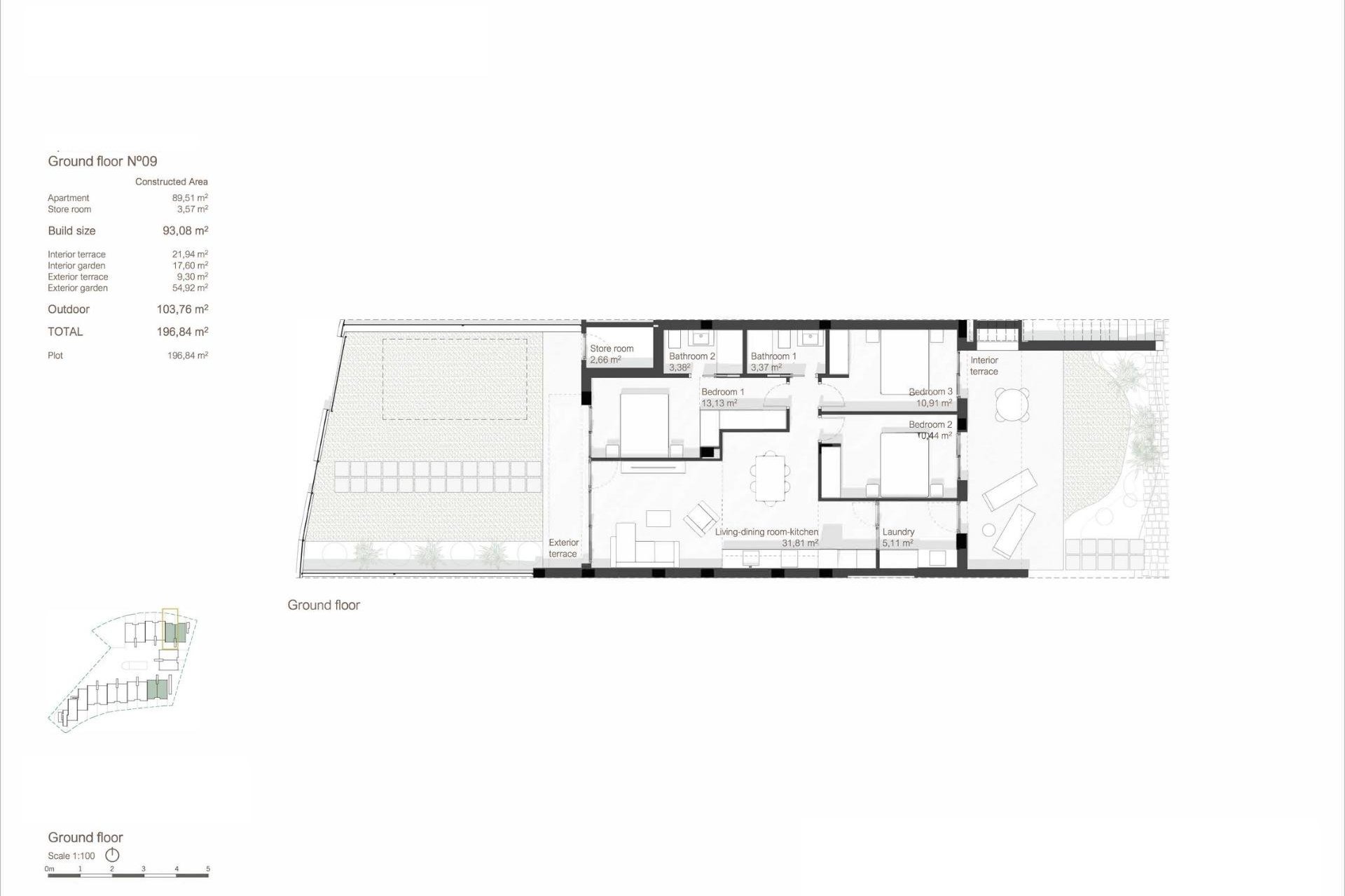
Deze moderne residentie biedt een scala aan woningtypes, uitzichten en oriëntaties, afhankelijk van je wensen. Alle bungalowappartementen hebben 3 tweepersoonsslaapkamers, 2 badkamers, een lichte en ruime open woon-eetkamer met Amerikaanse keuken en fantastische buitenruimte. Ze zijn allemaal voorzien van parkeerplaats en een eigen berging.
De 18 bungalows op de begane grond hebben een binnenterras en tuin die uitkomen op de gemeenschappelijke tuinen en het zwembad, evenals een groot, omheind terras en tuin aan de achterkant.
De 18 penthouses beschikken over een balkon aan de voorzijde van de woonkamer en een fantastisch privé dakterras van 90 m2 met zomerkeuken.
Het wooncomplex is ontworpen om maximaal gebruik te maken van ruimte en licht. Schitterend gebouwd en met een breed scala aan extra's, is deze exclusieve promotie een echte oase aan de Costa Calida in Spanje.
In het hart van het project ligt een prachtig gemeenschappelijk zwembad, omringd door mediterrane vegetatie. Het ligt de hele dag in de zon dankzij de oriëntatie op het zuiden en is de perfecte plek om te zwemmen, te ontspannen en te genieten van de zon van Murcia.
De woningen op de begane grond hebben niet alleen een fantastische binnenruimte, maar ook een prachtig terras aan de voorkant en een extra privétuin die uitkomt in het binnenland van het complex met de prachtige gemeenschappelijke tuinen en het zwembad.
Daarnaast bieden ze een terras aan de achterkant en een omheinde tuin voor maximale privacy, met een poort die leidt naar de buitenkant van de urbanisatie. De dubbele oriëntatie zorgt ervoor dat de woningen de hele dag door kunnen genieten van zon en schaduw.
Een prachtig onderhouden, door Dave Thomas ontworpen 18-holes golfbaan met meren, strategisch geplaatste bunkers, golvende greens en weelderige mediterrane vegetatie. Een privéresort met 24-uurs beveiliging, een eigen taxistandplaats, een schitterend clubhuis met à la carte restaurant, een fitnessruimte met uitzicht op het meer en een sportterrein. En dit alles op slechts een wandeling of fietstocht van de stranden en het rustige water van de binnenlagune van Mar Menor.
Deze residentie heeft een fantastische selectie van gouden zandstranden voor de deur, evenals een breed scala aan watersporten. Geniet van zowel de Mar Menor als de Middellandse Zee vanuit dit paradijs aan de kust van Murcia.
De vermelde informatie is slechts een leidraad en vormt NIET de volledige feiten en details van de te koop aangeboden eigendommen. Het is het oordeel van de koper en zijn juridisch adviseur om de volledige details en de juridische situatie van elk te koop aangeboden onroerend goed vast te stellen voordat het onroerend goed bij de notaris wordt opgeleverd. Alle prijzen zijn exclusief bijkomende kosten zoals belasting, notariskosten, kadaster,...
Medeoprichter en CEO