5
5
547m2
430m2
3.277m2
Sí
7000 Mts.
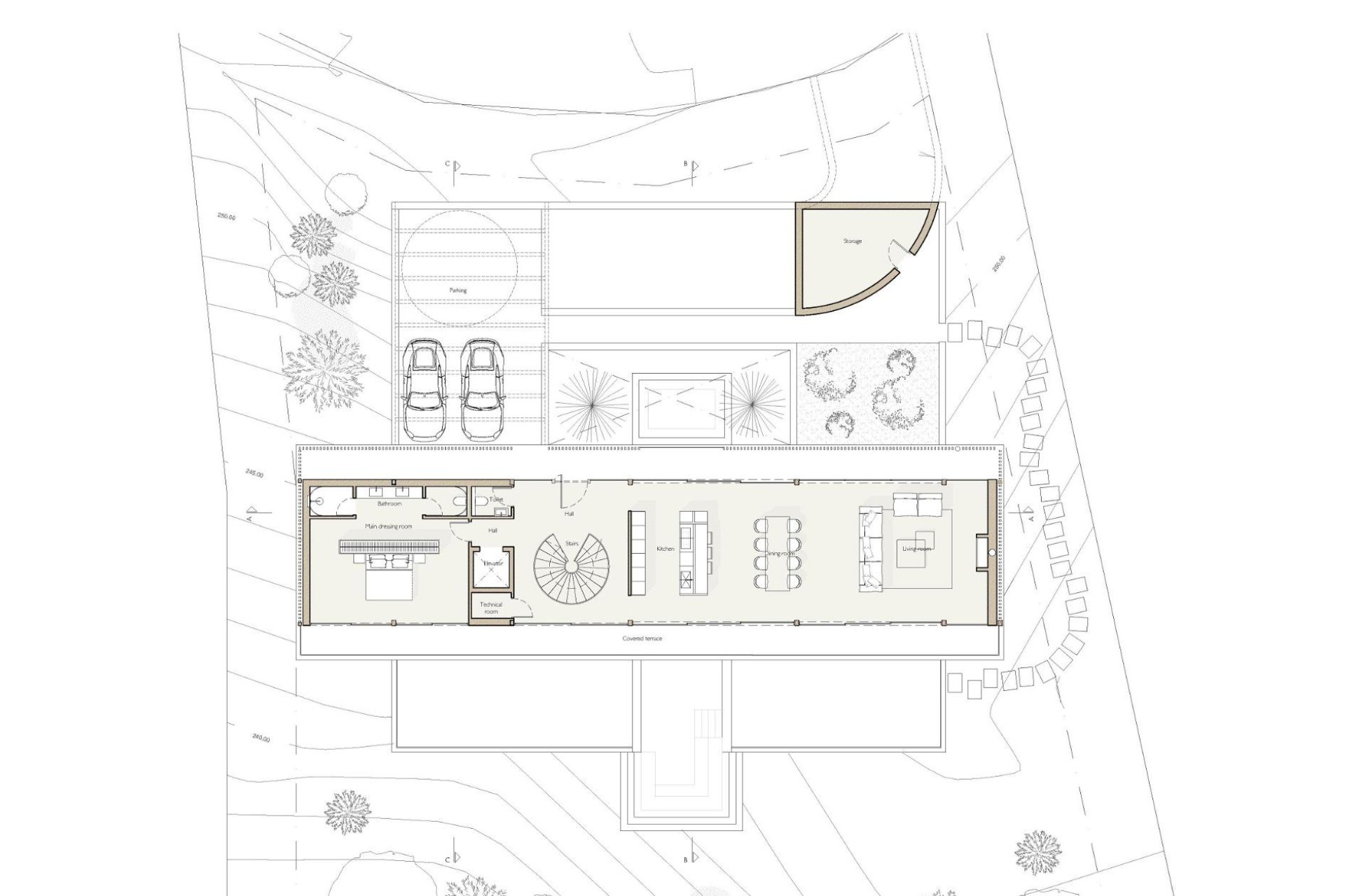
VILLA DE LUJO DE OBRA NUEVA EN BENAHAVIS Esta villa de lujo de obra nueva es una joya perfectamente ubicada en el corazón de Monte Mayor, Benahavís. Esta villa ofrece un diseño único y un concepto de desarrollo que combina a la perfección elegancia y funcionalidad. Con una parcela de 3.277 m2 y una superficie total construida de 1.077,65 m2, esta villa cuenta con 5 dormitorios exquisitamente diseñados y 5 baños completos, además de 2 aseos adicionales para invitados. La planta principal de entrada alberga una impresionante zona de estar de planta abierta con cocina, comedor y espacios de estar, y el dormitorio principal. En la planta inferior de la propiedad, le recibirá un patio interior que añade un toque de serenidad y encanto mediterráneo. Los cuatro dormitorios articulados en torno al patio con jacuzzi y las amplias terrazas cubiertas, adornadas con una elegante piscina alargada, crean una atmósfera de relajación y lujo que invita a abrazar la vida al aire libre. Cada rincón de esta casa ha sido cuidadosamente elaborado para proporcionar el máximo confort y privacidad a sus residentes. Los generosos espacios de entretenimiento interiores y exteriores hacen de esta villa el escenario perfecto para recibir a familiares y amigos. Tanto si disfruta de una cena al aire libre en una cálida noche de verano como si se acurruca en el acogedor salón junto a la chimenea en invierno, aquí encontrará el escenario perfecto para crear momentos inolvidables. Además, gracias a su céntrica ubicación en Monte Mayor, disfrutará de la tranquilidad y privacidad que ofrece esta exclusiva comunidad cerrada, sin dejar de estar a poca distancia en coche de las playas, campos de golf y todas las comodidades que ofrece la Costa del Sol. No pierda la oportunidad de hacer de esta villa su hogar y descubrir el verdadero significado de la vida en el paraíso mediterráneo.
La información proporcionada es sólo de orientación y NO constituye todos los hechos y detalles de las propiedades ofrecidas a la venta. Es discreción del comprador y su asesor legal establecer todos los detalles y la situación legal de cualquier propiedad ofrecida a la venta antes de que la propiedad sea entregada al notario. Todos los precios no incluyen costes adicionales como impuestos, gastos notariales, registro de la propiedad,...
Cofundador y director ejecutivo