5
5
547m2
430m2
3.277m2
Oui
7000 Mts.
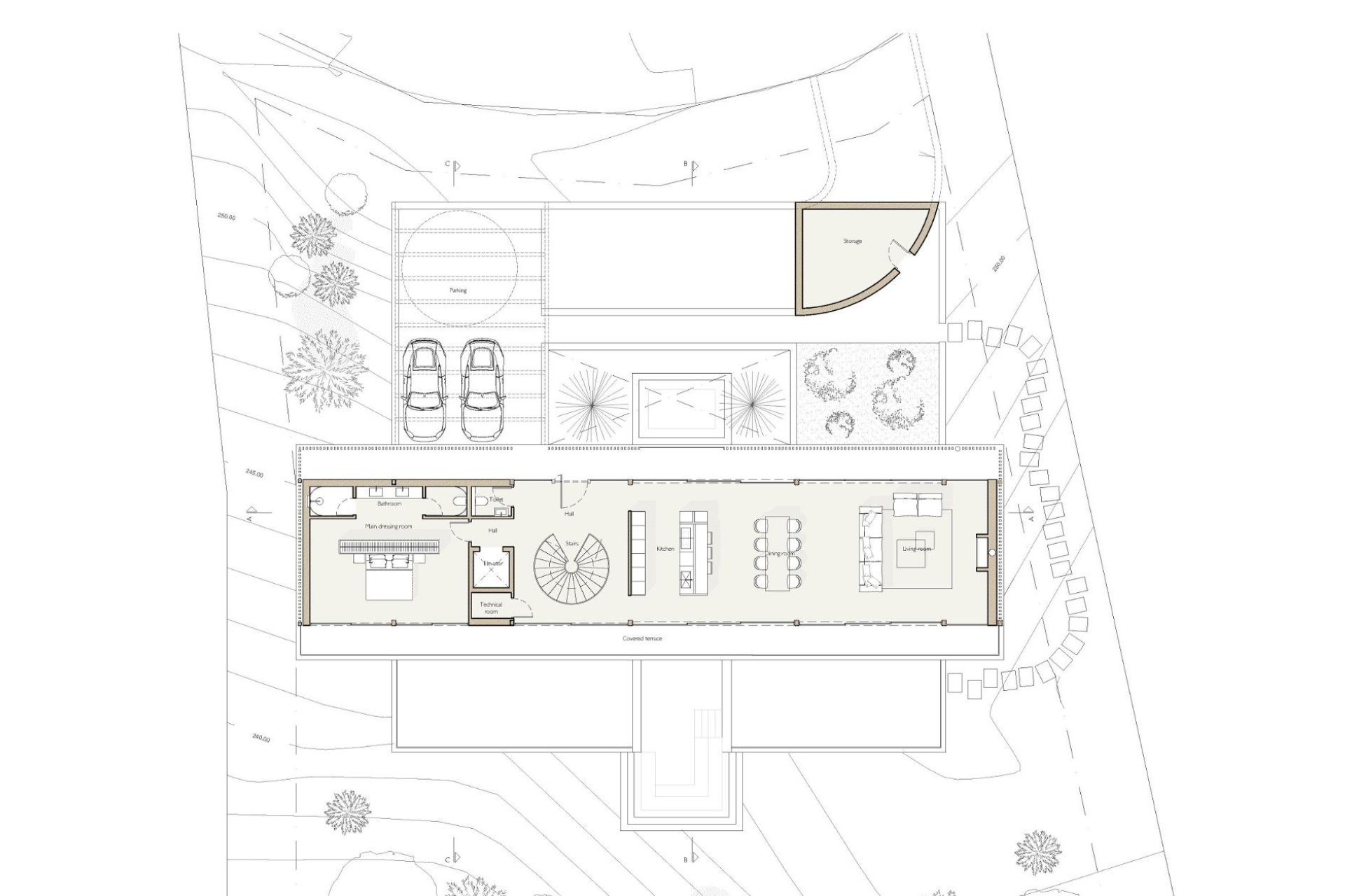
VILLA DE LUXE NEUVE A BENAHAVIS Cette villa de luxe nouvellement construite est un joyau parfaitement situé au cœur de Monte Mayor, Benahavis. Cette villa offre un design unique et un concept de développement qui combine harmonieusement l'élégance et la fonctionnalité. Avec un terrain de 3 277 m2 et une surface construite totale de 1 077,65 m2, cette villa dispose de 5 chambres à coucher et de 5 salles de bains complètes, ainsi que de 2 toilettes supplémentaires pour les invités. L'entrée de l'étage principal abrite un impressionnant espace de vie ouvert avec cuisine, salle à manger et salon, ainsi que la chambre principale. À l'étage inférieur de la propriété, vous serez accueilli par une cour intérieure qui ajoute une touche de sérénité et de charme méditerranéen. Les quatre chambres à coucher s'articulent autour du patio jacuzzi et des vastes terrasses couvertes, ornées d'une élégante piscine allongée, créant une atmosphère de détente et de luxe qui vous invite à profiter de la vie en plein air. Chaque recoin de cette maison a été soigneusement conçu pour offrir un maximum de confort et d'intimité à ses résidents. De vastes espaces de divertissement intérieurs et extérieurs font de cette villa le cadre idéal pour accueillir famille et amis. Qu'il s'agisse d'un dîner en plein air par une chaude nuit d'été ou de se réchauffer dans l'accueillant salon près de la cheminée en hiver, vous trouverez ici la toile de fond idéale pour créer des moments inoubliables. De plus, grâce à sa situation centrale à Monte Mayor, vous profiterez de la tranquillité et de l'intimité offertes par cette communauté fermée exclusive, tout en étant à une courte distance en voiture des plages, des terrains de golf et de toutes les commodités que la Costa del Sol a à offrir. Ne manquez pas l'occasion de faire de cette villa votre maison et de découvrir le vrai sens de la vie dans un paradis méditerranéen !
Les informations fournies sont à titre indicatif uniquement et ne constituent PAS l'intégralité des faits et des détails des propriétés proposées à la vente. Il est à la discrétion de l'acheteur et de son conseiller juridique d'établir tous les détails et la situation juridique de toute propriété proposée à la vente avant que la propriété ne soit remise au notaire. Tous les prix s'entendent hors frais supplémentaires tels que taxes, frais de notaire, cadastre,...
Co-fondateur et PDG