3
2
183m2
120m2
256m2
Ja
12000 Mts.
Moderne nieuwbouwwoningen in Dolores, Alicante
Eigentijds wonen in het hart van de Vega Baja
Ontdek dit exclusieve nieuwbouwproject in Dolores, een charmant stadje in de regio Vega Baja del Segura, ten zuiden van Alicante. Dolores staat bekend om zijn traditionele Spaanse karakter en wordt omgeven door een weelderig landschap. Het biedt een rustige levensstijl en alle dagelijkse voorzieningen op loopafstand, zoals winkels, restaurants, scholen en lokale diensten.
Deze woonwijk ligt op slechts 12 km van de stranden van La Marina en Guardamar del Segura en biedt gemakkelijke toegang tot de snelweg AP-7, waardoor het perfect verbonden is met de belangrijkste kustplaatsen van de Costa Blanca.
Elegante moderne villa's met privézwembad
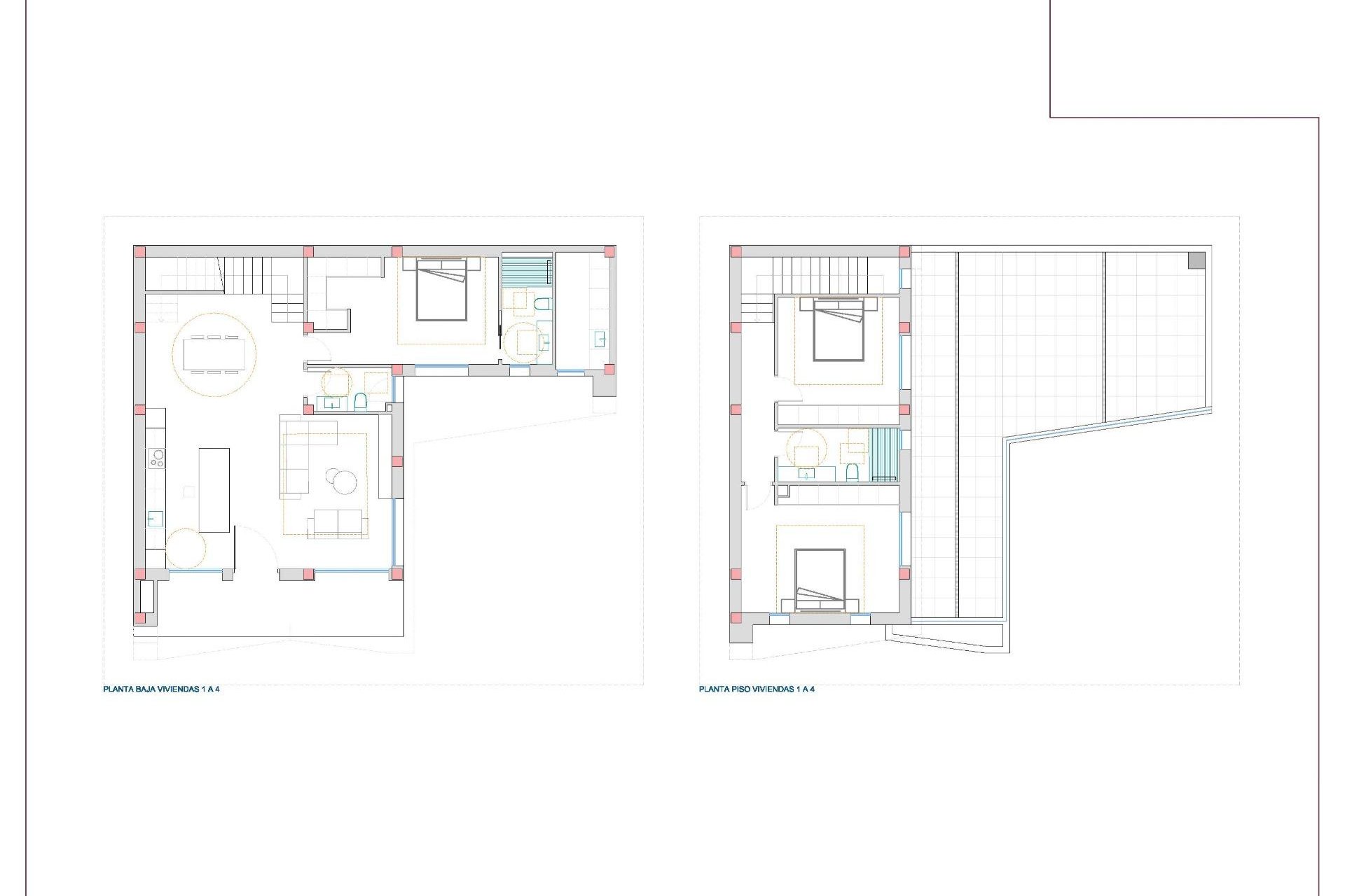
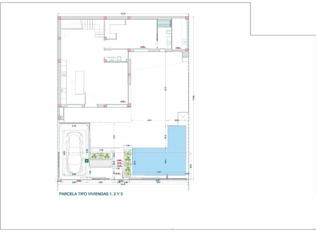
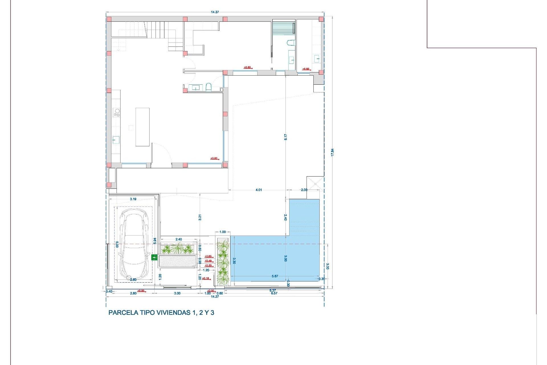
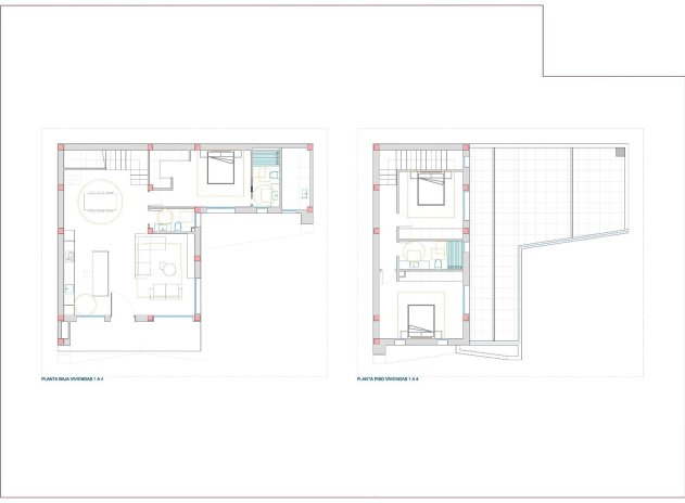
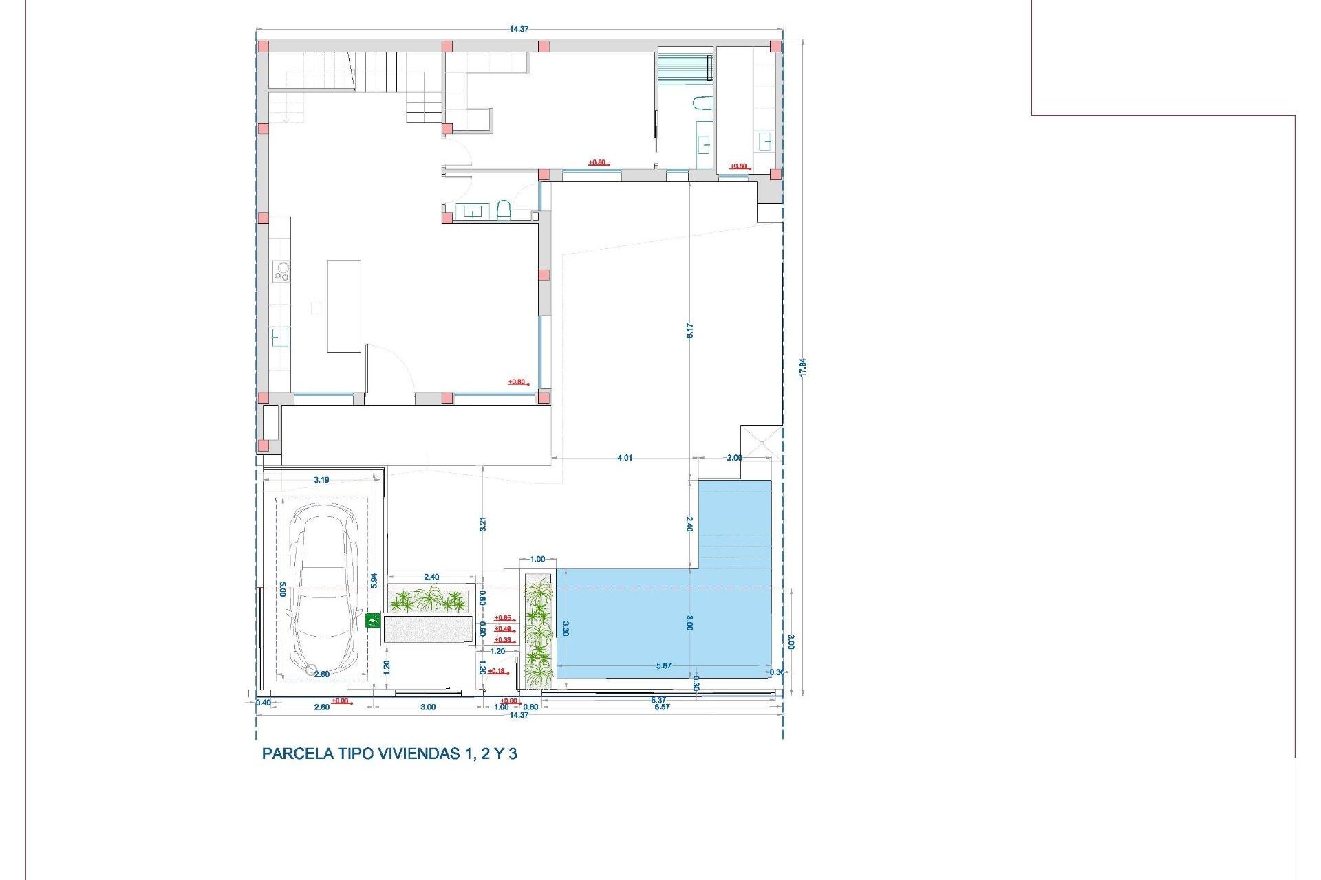
Deze moderne villa's met twee verdiepingen zijn ontworpen met het oog op comfort, functionaliteit en stijl. Op de begane grond vindt u een lichte open keuken die in verbinding staat met de woon-eetkamer, met grote schuifdeuren die direct uitkomen op het terras en de privétuin met zwembad. De begane grond beschikt ook over een slaapkamer met een eigen badkamer, een gastentoilet en een handige wasruimte buiten.
Op de eerste verdieping zijn er twee extra slaapkamers, een badkamer en toegang tot een groot open terras van 60 m2, perfect om te zonnebaden of te ontspannen terwijl u geniet van het mediterrane klimaat. Elke woning heeft een eigen parkeerplaats op het perceel.
Hoogwaardige afwerking en modern comfort
Deze villa's zijn gebouwd met hoogwaardige materialen en een eigentijds ontwerp en zijn volledig uitgerust om het hele jaar door te wonen. De belangrijkste kenmerken zijn:
Buitenbetimmering met thermische onderbreking
Gemotoriseerde zonwering
Warmwatersysteem op basis van aerothermische energie
Volledig geïnstalleerde airconditioning met luchtkanalen
Privézwembad
Privé parkeerplaats en aangelegde tuin
Het interieur combineert elegantie en functionaliteit, maximaliseert het natuurlijke licht en biedt een uitzonderlijke leefomgeving met een sterke verbinding tussen binnen- en buitenruimtes.
Toplocatie dicht bij alles
Dolores ligt op een strategische locatie en biedt een evenwicht tussen rust en bereikbaarheid.
Belangrijkste afstanden:
Stranden van La Marina en Guardamar del Segura: 12 km
Luchthaven Alicante (Elche-El Altet): 30 km (25 minuten met de auto)
Luchthaven Murcia-Corvera: 70 km (1 uur met de auto)
Golfbanen: 15 km
De stad Alicante: 40 km
Leef de mediterrane levensstijl in Dolores
Deze nieuwbouwwoningen in Dolores bieden de perfecte combinatie van modern design, comfort en nabijheid tot de kust. Ze zijn ideaal voor zowel permanente bewoning als vakantieverblijf en bieden een serene mediterrane levensstijl, omgeven door natuur en gemak.
Neem vandaag nog contact met ons op om een bezichtiging te regelen en uw droomhuis in Dolores werkelijkheid te laten worden.
De vermelde informatie is slechts een leidraad en vormt NIET de volledige feiten en details van de te koop aangeboden eigendommen. Het is het oordeel van de koper en zijn juridisch adviseur om de volledige details en de juridische situatie van elk te koop aangeboden onroerend goed vast te stellen voordat het onroerend goed bij de notaris wordt opgeleverd. Alle prijzen zijn exclusief bijkomende kosten zoals belasting, notariskosten, kadaster,...
Medeoprichter en CEO