2
2
76m2
Ja
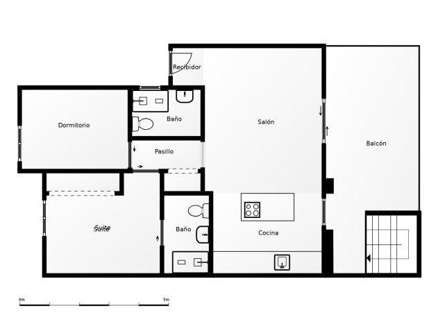
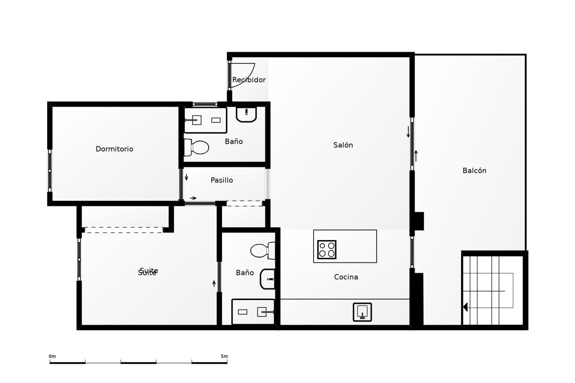
Ontdek deze prachtige bungalow op de bovenste verdieping, gelegen in de prestigieuze wijk PAU 26, Orihuela Costa, waar modern design, comfort en levenskwaliteit perfect samenkomen.~~Deze zo goed als nieuwe woning, gebouwd in 2022, beschikt over 76 m2 bebouwde oppervlakte, een functionele indeling en een uitstekende zuidgerichte ligging, waardoor u de hele dag kunt genieten van natuurlijk licht.~~Via de straat bereikt u een privé en exclusief wooncomplex met slechts 24 woningen, wat rust, privacy en een aangename woonomgeving garandeert. Bij binnenkomst wordt u verwelkomd door een lichte en ruime woon-eetkamer met een moderne open keuken. Vanuit de woonkamer heeft u toegang tot een balkon van 12 m2, voorzien van een elektrisch zonnescherm en kunstgras, ideaal om het hele jaar door van het buitenleven te genieten.~De woning beschikt daarnaast over een wasruimte, twee ruime tweepersoonsslaapkamers en twee complete badkamers, beide met vloerverwarming voor optimaal comfort.~~Vanaf het balkon leidt een privétrap naar het hoogtepunt van de woning: een indrukwekkend privé dakterras (solarium) van ca. 71 m2, afgewerkt met kunstgras en zonneschermen, perfect voor een exclusieve chill-out ruimte of ontspannen momenten onder de mediterrane zon.~~Tot de extra’s behoren porseleinen vloeren, horren voor alle ramen, veiligheidsdeur, een elektrisch zonnescherm op het balkon en een handmatig zonnescherm op de pergola van het solarium.~~De woning wordt verkocht inclusief privé parkeerplaats en afgesloten berging, wat extra gemak en opslagruimte biedt.~~Het wooncomplex beschikt over een prachtig gemeenschappelijk zwembad, zeer goed onderhouden groene zones en hoogwaardige gemeenschappelijke ruimtes – pure luxe.~~Gelegen op slechts 3,5 km van de zee, bevindt de woning zich dicht bij bekende stranden zoals La Zenia en Playa Flamenca, beroemd om hun kristalheldere water en uitstekende voorzieningen.~~Dankzij de nabijheid van prestigieuze golfbanen is deze woning ook een zeer gewilde vakantiewoning met uitstekend verhuurpotentieel.~~ Een woning die staat voor exclusiviteit, comfort en mediterrane levensstijl.~Een unieke kans – neem vandaag nog contact met ons op.Prijs: €349.000~Belastingen en aankoopkosten niet inbegrepen (volgens de geldende regelgeving). Een overzicht van de bijkomende kosten wordt verstrekt vóór de reservering.
De vermelde informatie is slechts een leidraad en vormt NIET de volledige feiten en details van de te koop aangeboden eigendommen. Het is het oordeel van de koper en zijn juridisch adviseur om de volledige details en de juridische situatie van elk te koop aangeboden onroerend goed vast te stellen voordat het onroerend goed bij de notaris wordt opgeleverd. Alle prijzen zijn exclusief bijkomende kosten zoals belasting, notariskosten, kadaster,...
Medeoprichter en CEO