2
2
90m2
80m2
225m2
Ja
1500 Mts.
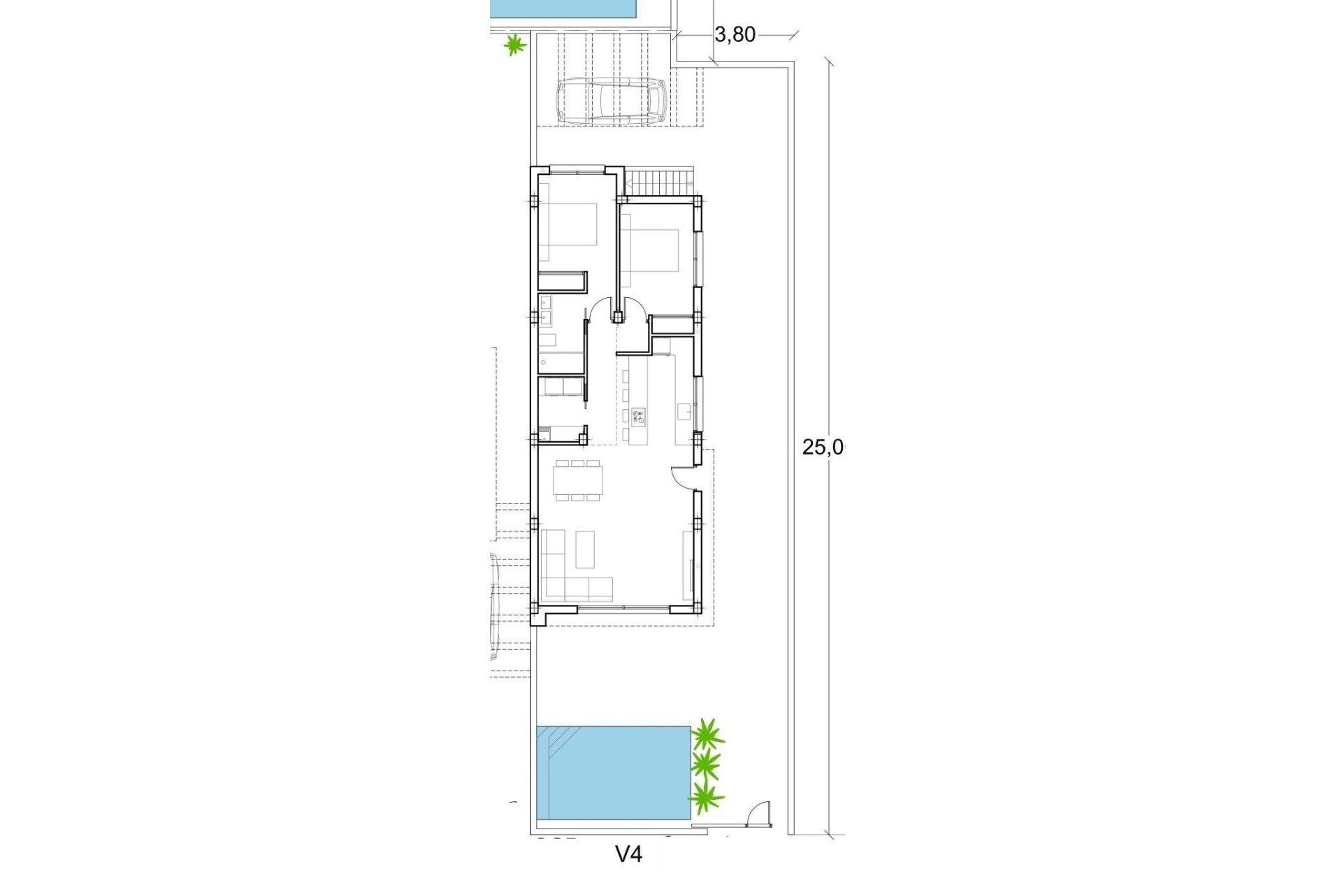
Nieuwbouwwilla’s met privézwembad nabij La Serena Golf in Los Alcázares Exclusief boetiekproject nabij golfbaan en strand Ontdek dit exclusieve woonproject met slechts acht vrijstaande nieuwbouwwilla’s, ideaal gelegen tussen La Serena Golf en het charmante kustplaatsje Los Alcázares. Deze woningen liggen op slechts 1500 meter van de stranden van de Mar Menor en bieden de perfecte combinatie van golf, zee en mediterrane levensstijl. Dankzij de ligging kunnen bewoners op loopafstand genieten van zowel de golfbaan als het stadscentrum, waar een breed scala aan restaurants, winkels, cafés en essentiële voorzieningen te vinden is. Los Alcazares staat bekend om zijn ontspannen sfeer, lange boulevard en ondiepe, warme wateren, waardoor het een populaire bestemming is voor zowel vakantiegangers als permanente bewoners. Moderne villa's met flexibele indelingen Deze eigentijdse villa's zijn verkrijgbaar in uitvoeringen met twee of drie slaapkamers, met de keuze uit een gelijkvloerse of een split-level indeling. Gebouwd op privéterreinen vanaf 200 m², is elke woning ontworpen om ruimte, comfort en natuurlijk licht te maximaliseren. Alle villa's beschikken over een privézwembad en parkeergelegenheid op het terrein, waardoor een besloten en functionele buitenomgeving ontstaat die ideaal is om het hele jaar door van het zonnige klimaat te genieten. Villa's met één verdieping beschikken over een eigen dakterras, perfect om te zonnen of te ontspannen met een weids uitzicht. Villa's met twee verdiepingen bieden ruime terrassen op de bovenverdieping, waardoor er extra buitenruimtes ontstaan. Open woonconcept en verbinding met buiten De indeling van het interieur is gericht op een open woonconcept, waarbij lichte woon- en eetruimtes naadloos aansluiten op moderne keukens. Grote ramen laten natuurlijk licht de ruimtes vullen en bieden tegelijkertijd directe toegang tot terrassen en zwembadruimtes. Dit ontwerp versterkt de binnen-buitenlevensstijl die kenmerkend is voor het leven aan de Costa Calida, waardoor deze villa's ideaal zijn voor zowel het dagelijks leven als het ontvangen van gasten. Hoogwaardige afwerking en moderne voorzieningen De villa's zijn gebouwd volgens hoge normen met gebruikmaking van hoogwaardige materialen en vertrouwde merken. Tot de voorzieningen behoren een versterkte veiligheidsdeur van DIERRE, inbouwkasten en moderne keukens uitgerust met BOSCH-apparatuur. Andere specificaties zijn onder meer een aerothermisch systeem voor warm water, gemotoriseerde rolluiken en een automatische toegangspoort voor voertuigen. Aan elk detail is zorgvuldig aandacht besteed om comfort, efficiëntie en gemak te bieden. Toplocatie aan de Costa Calida Los Alcazares biedt een uitstekende locatie met gemakkelijke toegang tot stranden, golfbanen en vervoersverbindingen. De stranden van het Mar Menor liggen op slechts 1,5 km afstand, terwijl La Serena Golf op loopafstand ligt. Andere belangrijke afstanden zijn onder meer de luchthaven Murcia-Corvera op 35 km, Cartagena op 25 km, de stad Murcia op 50 km en de luchthaven van Alicante op 90 km. Ideale investering of kans op een vakantiehuis Deze nieuwbouwwilla's bieden een zeldzame kans om een moderne woning te bezitten op een toplocatie dicht bij zowel de zee als de golfbaan. Neem vandaag nog contact met ons op voor meer informatie of om een bezichtiging te regelen en uw nieuwe villa in Los Alcazares te bemachtigen.
De vermelde informatie is slechts een leidraad en vormt NIET de volledige feiten en details van de te koop aangeboden eigendommen. Het is het oordeel van de koper en zijn juridisch adviseur om de volledige details en de juridische situatie van elk te koop aangeboden onroerend goed vast te stellen voordat het onroerend goed bij de notaris wordt opgeleverd. Alle prijzen zijn exclusief bijkomende kosten zoals belasting, notariskosten, kadaster,...
Medeoprichter en CEO