3
2
120m2
98m2
10.000m2
Ja
50000 Mts.
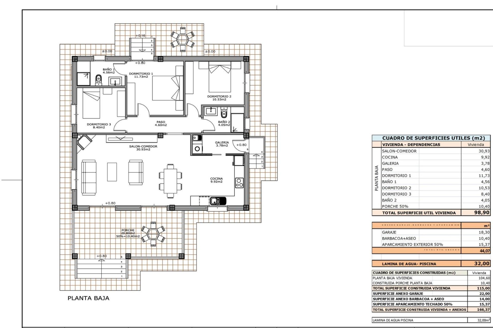
NIEUWBOUW VILLA'S IN PINOSO Je kunt villa's kiezen met traditionele Spaanse accenten of supermoderne afwerking, helder en schoon. Er zijn verschillende wettelijke bouwpercelen beschikbaar (rustiek met een minimum van 10.000 m2), sommige op loopafstand van de stad, sommige volledig privé en onze populairste percelen liggen op 5-10 minuten rijden van een stad. We hebben een perceel voor elke smaak, allemaal met een prachtig uitzicht en allemaal met leidingwater + elektriciteit inbegrepen in de prijs en snel internet beschikbaar. Van de grootste en beste bouwer in de omgeving en met materialen van topkwaliteit voor een perfecte afwerking. Alle huizen zijn inclusief 2m gestempeld betonnen terras rond het zwembad (kleur en patroon naar keuze), 1m rond het huis, gated ingang, 3.000 m2 omheining, vooraf geïnstalleerde airco, standaard keuken, veiligheidsdeur, Duitse draai-kiep ramen (of schuiframen indien gewenst), ingebouwde open haard en schoorsteen, pre-installatie voor tv en internet, grind oprit plus een paar meter rond het huis, septic tank. De badkamers hebben een douchekolom, douchebak of bad, wastafelmeubels (verschillende kleuren om uit te kiezen) met wastafels, kranen en spiegels, plus een grote keuze aan wandtegels. Ruime keuze aan keramische vloertegels, verschillende kleuren, houteffect, enz. Keukens zijn inclusief kasten met standaard deuren en handgrepen, volgens bijgeleverde plannen, roestvrijstalen gootsteen en kraan, voorinstallatie voor oven, vaatwasser, afzuigkap. Diverse granieten werkbladen om uit te kiezen inbegrepen in het budget, andere stenen werkbladen beschikbaar als extra. Witgoed is niet inbegrepen. Marmeren trap (crème, wit of grijs) en leuningen inbegrepen, plus leuningen voor het voorportaal. Groot vast glazen raam op de trap voor extra licht. Keuze van tegels en trapontwerp voor zwembad. Keuze uit graniet voor de buitentrappen en raamstijlen. Je kunt het huis naar eigen wens aanpassen, de meeste interne veranderingen zijn gratis, de huizen kunnen worden uitgebreid en we kunnen zelfs je eigen ontwerp bouwen. Upgraden naar een groter zwembad, enkele of dubbele garage, gastenverblijf, enz. kan tegen meerprijs. Het mooie en bloeiende stadje Pinoso ligt op ongeveer 45 minuten landinwaarts van Alicante en de witte stranden van de Costa Blanca en dicht bij de grens tussen Murcia en Alicante. Het heeft iets minder dan 8.000 inwoners. Pinoso, ook bekend als El Pinos, is vernoemd naar de pijnbomen die de bergketens van het gebied bedekken. Pinoso biedt een Spaanse landelijke levensstijl, geen stoplichten, nauwelijks verkeer, praktisch de enige opstoppingen worden veroorzaakt door de tractoren die de druiven naar de Bodega brengen. De velden zijn beplant met wijnstokken, amandelen en olijven. In februari staan de velden vol met roze amandelbloesem. Pinoso heeft veel bars, restaurants en winkels, een nieuw 24-uurs medisch centrum, tandartsen, twee basisscholen en 1 middelbare school, een theater. Er is een uitstekend sportcentrum met buitenzwembaden, tennisbanen, voetbalvelden en fitnessruimte, bibliotheek en vele andere faciliteiten, waaronder een prachtige picknickplaats tussen de pijnbomen, compleet met barbecues, zitjes en stromend water.
De vermelde informatie is slechts een leidraad en vormt NIET de volledige feiten en details van de te koop aangeboden eigendommen. Het is het oordeel van de koper en zijn juridisch adviseur om de volledige details en de juridische situatie van elk te koop aangeboden onroerend goed vast te stellen voordat het onroerend goed bij de notaris wordt opgeleverd. Alle prijzen zijn exclusief bijkomende kosten zoals belasting, notariskosten, kadaster,...
Medeoprichter en CEO